Вхід на сайт

Ел. пошта:
Пароль:

Реєстрація на сайті

Призвіще: Область:
Ім'я: Населений пункт:
    По батькові: Номер телефону:
    Ел. пошта: Компанія:
      Пароль: Посада:
      Повторіть пароль: Рік початку роботи:
      Фото:
      З правилами розміщення об'єктів погоджуюсь

      Забули пароль?

      Вкажіть ел. пошту — ми надішлемо Вам новий пароль для входу
      Ел. пошта:

      Проблема на сайті

      Закрити
      Ваш e-mail:
      (необов'язково)
      Розкажіть нам, що сталось

      ул. Усика — Продається склад

      (г. Кривой Рог, Центрально-Городской район)

      145000 $

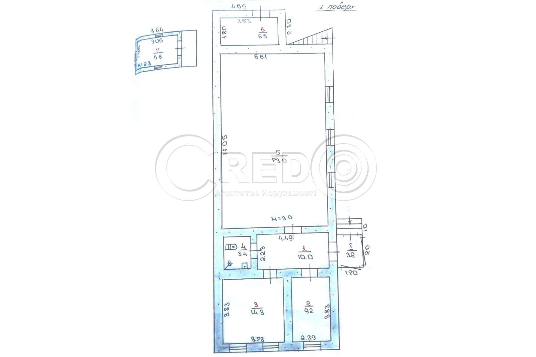
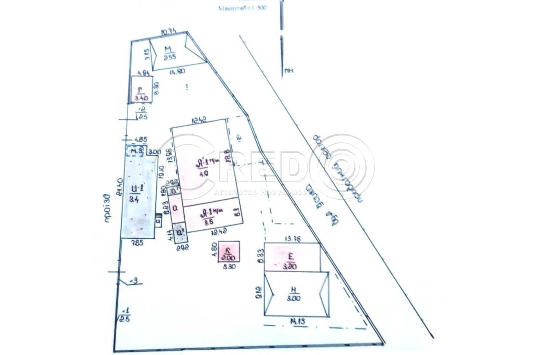
      Загальна площа: 541 кв.м

      К-ть поверхів: 1

      Продаж складу вул. Усика район «Пісочної»
      Земельна ділянка 30 соток
      Територія огорожена

      Про об'єкт:
      - Загальна площа забудови 541.4кв.м.
      - Склад 205.1кв.м.
      - Офіс 85.5кв.м.
      - Сторожка 5.8кв.м.

      Комунікації:
      - Електроенергія 220V
      - Центральне водопстачання

      Продаж $145 000 договірна

      За будь-якими питаннями за цією або схожими пропозиціями звертайтесь за номером телефону, де вам відповість наш ріелтор Надія 098 985 09 08.
      З повагою, АН CREDO

      Надіслати скаргу

      Закрити
      Поскаржитися на об'єкт «ул. Усика (г. Кривой Рог, Центрально-Городской район)»
      Ваш коментар:(Необов'язково)
      Ваша скарга буде надіслана ріелтору, що розмістив об'єкт, а також адміністрації сайту АФНУ.
      Ваше ім'я:
      (Обов'язково)
      Ваш e-mail для відповіді:
      (Обов'язково)

      Коментарі