Вхід на сайт

Ел. пошта:
Пароль:

Реєстрація на сайті

Призвіще: Область:
Ім'я: Населений пункт:
    По батькові: Номер телефону:
    Ел. пошта: Компанія:
      Пароль: Посада:
      Повторіть пароль: Рік початку роботи:
      Фото:
      З правилами розміщення об'єктів погоджуюсь

      Забули пароль?

      Вкажіть ел. пошту — ми надішлемо Вам новий пароль для входу
      Ел. пошта:

      Проблема на сайті

      Закрити
      Ваш e-mail:
      (необов'язково)
      Розкажіть нам, що сталось

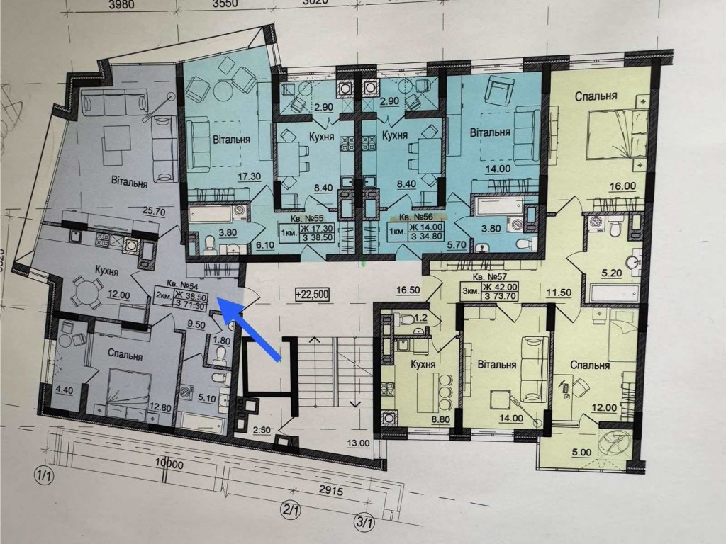
      ул. Сторожинецкая, 98 — Продається квартира в новобудові

      (г. Черновцы)

      89000 $

      Загальна площа: 71 кв.м

      Жила площа: 38 кв.м

      Площа кухні: 12 кв.м

      Кімнат: 2

      Поверх: 7

      К-ть поверхів: 10

      Світла, простора квартира з панорамними вікнами та чудовим краєвидом на Чернівецький Національний Університет. На стадії будівництва (здача в кінці 2026 року). Можливе розтермінування від забудовника до кінця будівництва з першим внеском від 30 %. Монолітно-каркасна тенологія будівництва, внутрішні та зовнішні стіни з керамічної цегли. Стильний зовнішній дизайн комплексу, закритий внутрішній двір, гостьовий паркінг обладнаний зарядкою для електрокарів. У вартість входять: якісні металопластикові вікна (6-ти камерний профіль, 2-во камерний склопакет з якісною німецькою фурнітурою), броньовані вхідні двері, чорнова стяжка та штукатурка, двоконтурний газовий котел, всі лічильники, підведення електрики до квартири, каналізації до стояка, облаштування прибудинкової території та дизайн під'їзду.

      Надіслати скаргу

      Закрити
      Поскаржитися на об'єкт «ул. Сторожинецкая, 98 (г. Черновцы)»
      Ваш коментар:(Необов'язково)
      Ваша скарга буде надіслана ріелтору, що розмістив об'єкт, а також адміністрації сайту АФНУ.
      Ваше ім'я:
      (Обов'язково)
      Ваш e-mail для відповіді:
      (Обов'язково)

      Коментарі