Вхід на сайт

Ел. пошта:
Пароль:

Реєстрація на сайті

Призвіще: Область:
Ім'я: Населений пункт:
    По батькові: Номер телефону:
    Ел. пошта: Компанія:
      Пароль: Посада:
      Повторіть пароль: Рік початку роботи:
      Фото:
      З правилами розміщення об'єктів погоджуюсь

      Забули пароль?

      Вкажіть ел. пошту — ми надішлемо Вам новий пароль для входу
      Ел. пошта:

      Проблема на сайті

      Закрити
      Ваш e-mail:
      (необов'язково)
      Розкажіть нам, що сталось

      без комісії Берестейский проспект, 5в — Продається квартира

      (г. Киев, Шевченковский район)

      96500 $

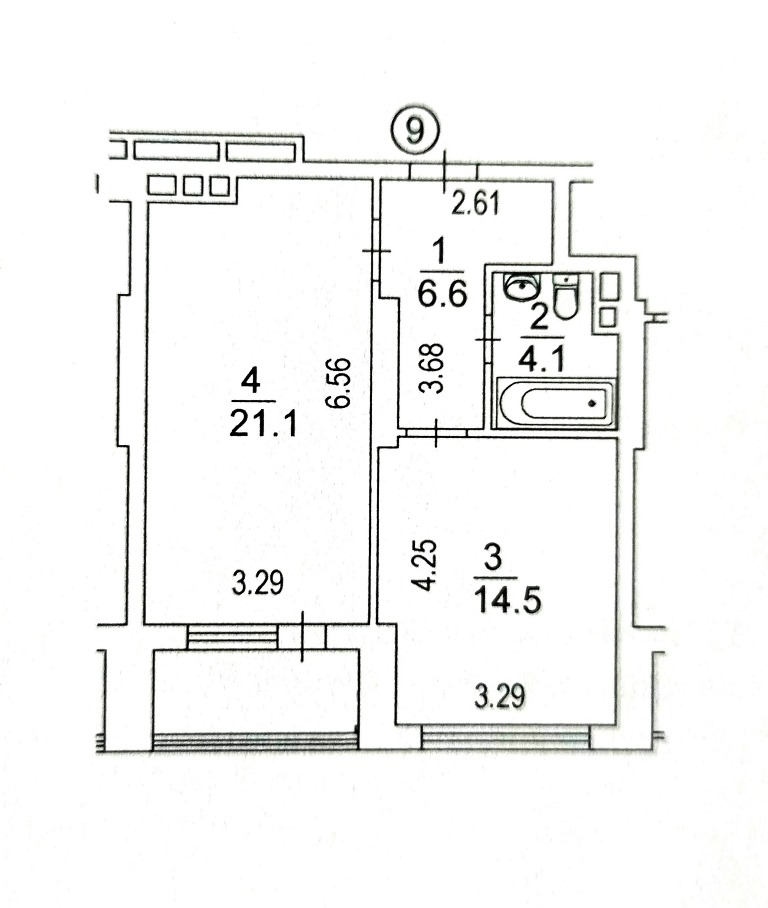
      Загальна площа: 50 кв.м

      Жила площа: 15 кв.м

      Площа кухні: 21 кв.м

      Кімнат: 1

      Поверх: 3

      К-ть поверхів: 34

      У продажу Простора 1-кімнатна квартира площею 50 м² у сучасному житловому комплексі бізнес класу «Вікторія V» майже у самому центрі Києва. Адреса: м. Київ, проспект Перемоги, 5В. Шевченківський р-н.
      Чудовий варіант як для життя, так і для інвестицій!

      Надіслати скаргу

      Закрити
      Поскаржитися на об'єкт «Берестейский проспект, 5в (г. Киев, Шевченковский район)»
      Ваш коментар:(Необов'язково)
      Ваша скарга буде надіслана ріелтору, що розмістив об'єкт, а також адміністрації сайту АФНУ.
      Ваше ім'я:
      (Обов'язково)
      Ваш e-mail для відповіді:
      (Обов'язково)

      Вам также могут подойти

      Рональда Рейгана(Драйзера), 34 (г. Киев, Деснянский район) - Продається квартира, 86000 $ - АФНУ

      Оновлено: сьогодні

      Розміщено: 21 січня

      Продається квартира

      3 кімн., площа 100/54/15, поверх 13/14

      г. Киев, Рональда Рейгана(Драйзера), 34

      86000 $ без комісії

      Самовалов Геннадий Александрович

      У продажу видова 3к квартира в цегляному будинку вул. Драйзера (Рейгана) 34/51 на 13 поверсі 14-поверхового будинку 1999 року побудови. Продається без комісії! З якісним ремонтом, сучасними меблями і всією…

      Детальніше

      наб. Днепровская, 13 (г. Киев, Днепровский район) - Продається квартира, 112900 $ - АФНУ

      Оновлено: сьогодні

      Розміщено: 16 травня

      Продається квартира

      3 кімн., площа 70/41/9, поверх 15/18

      г. Киев, наб. Днепровская, 13

      112900 $ без комісії

      Самовалов Геннадий Александрович

      Продається затишна і комфортна 3-кімнатна квартира з РЕМОНТОМ і меблями площею 70м2 у цегляному будинку - вулиця Дніпровська набережна, 13, Березняки. Сучасний будинок розташований у красивому місці в першій лінії…

      Детальніше

      Коментарі