Вхід на сайт

Ел. пошта:
Пароль:

Реєстрація на сайті

Призвіще: Область:
Ім'я: Населений пункт:
    По батькові: Номер телефону:
    Ел. пошта: Компанія:
      Пароль: Посада:
      Повторіть пароль: Рік початку роботи:
      Фото:
      З правилами розміщення об'єктів погоджуюсь

      Забули пароль?

      Вкажіть ел. пошту — ми надішлемо Вам новий пароль для входу
      Ел. пошта:

      Проблема на сайті

      Закрити
      Ваш e-mail:
      (необов'язково)
      Розкажіть нам, що сталось

      пр. Металлургов — Здається торгівельний майданчик

      (г. Кривой Рог, Дзержинский район)

      100 грн. за кв.м.

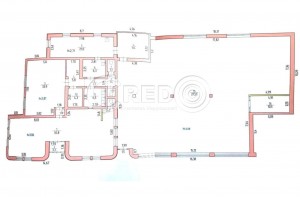
      Загальна площа: 448 кв.м

      Поверх: 1

      К-ть поверхів: 1

      Оренда приміщення, "Соцмісто", парк Б.Хмельницького.
      - Металургійний район
      - пр. Металургів, 5а
      - розташоване в центрі "Соцміста"
      - парк імені Б. Хмельницького

      Про об’єкт:
      - окрема будівля в парковій зоні
      - приміщення під будь яку діяльність
      - в гарному стані
      - земельна ділянка - 6 соток

      Планування об’єкту:
      - загальна площа - 448,8 кв.м
      - зали площею - 273 кв.м та 65 кв.м
      - кухня з обладнанням
      - висота стелі - 3.58м
      - центральний, додатковий входи
      - має мангальну зону

      Комунікації:
      - електроенергія - 13кВт; 220 V
      - центральне водопостачання та каналізація
      - пожежна та охоронyа сигналізації

      Додаткові платежі:
      - світло, вода - лічильники
      - пожежна та охоронна сигналізації
      - податок на землю
      - інтернет
      - 50% послуга агенції

      Логістична розв’язка:
      - поруч стадіон, ДК Металургів
      - поруч зупинки громадського транспорту
      - великий пішохідній трафік

      Особливості приміщення:
      - об’єкт розташовано в парку - місце для відпочинку громадян
      - просторорий торгівельний зал
      - використовувалось під кафе

      Вартість оренди 100грн/кв.м

      За будь-якими питаннями за цією або схожими пропозиціями звертайтесь за номером телефону 067 696 16 51.
      З повагою, команда Credo!

      Надіслати скаргу

      Закрити
      Поскаржитися на об'єкт «пр. Металлургов (г. Кривой Рог, Дзержинский район)»
      Ваш коментар:(Необов'язково)
      Ваша скарга буде надіслана ріелтору, що розмістив об'єкт, а також адміністрації сайту АФНУ.
      Ваше ім'я:
      (Обов'язково)
      Ваш e-mail для відповіді:
      (Обов'язково)

      Вам также могут подойти

      ул. Балакина (г. Кривой Рог, Саксаганский район) - Здається торгівельний майданчик, 100 грн. за кв.м. - АФНУ

      Оновлено: 29 серпня

      Розміщено: 29 серпня

      Здається торгівельний майданчик

      площа 350, поверх 1/5

      г. Кривой Рог, ул. Балакина

      100 грн. за кв.м.

      Літвинова Ірина Вікторівна

      Оренда магазину на "Вечірньому"
      - вул. Павла Глазового, 41
      - Саксаганський район
      - "червона лінія"

      Технічні характеристики:
      - загальна площа – 350 кв.м.
      - торгівельний зал площею 235,6 кв.м
      -…

      Детальніше

      Коментарі