|
пер. 5-й Заречный — Здається торгівельний майданчик
(г. Кривой Рог, Жовтневый район)
15000 грн.
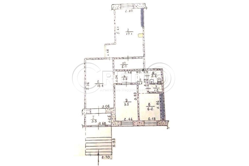
Загальна площа: 63 кв.м
Поверх: 1
К-ть поверхів: 9
Оренда приміщення, район Покровський, мкрн. 5-й Зарічний
Загальна площа – 63,2кв.м. Приміщення фасадне, Решітки на вікнах і дверях. Місце для розміщення реклами
Комунікації: - Опалення центральне - Водопостачання - Електроенергія 8кВт - Кондиціонер - Каналізація
Плюси локації: - Центр мікрорайону 5-й Зарічний (Бродвей) - Густонаселений район Високий пішохідний та автомобільний трафік
Особливості об’єкту: - На протязі 15 років працює аптека. - Роками напрацьована клієнтська база. - Приміщення з обладнанням.
Оренда 15000грн Додаткові витрати: платежі за комунальні послуги
З повагою, команда Credo!
|
Оновлено: 18 серпня
Розміщено: 4 червня
|
|
Вам также могут подойти
Оновлено: 11 серпня
Розміщено: 26 січня 2018
|
площа 25, поверх 1/5
г. Кривой Рог, ул. Софьи Перовской
14800 $
Літвинова Ірина Вікторівна
|
Продається приміщення в районі зупинки «Площі В. Великого», вулиця Софії Перовської.
Про об'єкт: - Загальна площа - 25,1 кв.м.
Особливості: - Зроблений новий євроремонт 2022р. - Поміняна каналізація, проводка, бойлер…
Детальніше
|
Оновлено: 9 вересня
Розміщено: 8 листопада 2018
|
площа 67, поверх 1/4
г. Кривой Рог, ул. Косиора
17700 €
Літвинова Ірина Вікторівна
|
Продаж приміщення, вул. Соборності, Соцмісто
Про обʼєкт: - вбудоване в 1-ий поверх 4-х поверхового житлового будинку - загальна площа - 67,5 кв. м
Особливості: - два зали, кабінет - сан.вузол,…
Детальніше
|
Оновлено: 20 серпня
Розміщено: 9 лютого 2022
|
площа 72, поверх 1/1
г. Кривой Рог, пл. Горняцкой Славы
13500 $
Літвинова Ірина Вікторівна
|
Продається окрема будівля в парку (ПівдГЗК) пл.Гірницької Слави
Про будівлю: - земельна ділянка 3,8 соток. - загальна площа - 72,2 кв.м. - є тераса
Локація: Поруч парк, який був повністю…
Детальніше
|
Коментарі
|