Вхід на сайт

Ел. пошта:
Пароль:

Реєстрація на сайті

Призвіще: Область:
Ім'я: Населений пункт:
    По батькові: Номер телефону:
    Ел. пошта: Компанія:
      Пароль: Посада:
      Повторіть пароль: Рік початку роботи:
      Фото:
      З правилами розміщення об'єктів погоджуюсь

      Забули пароль?

      Вкажіть ел. пошту — ми надішлемо Вам новий пароль для входу
      Ел. пошта:

      Проблема на сайті

      Закрити
      Ваш e-mail:
      (необов'язково)
      Розкажіть нам, що сталось

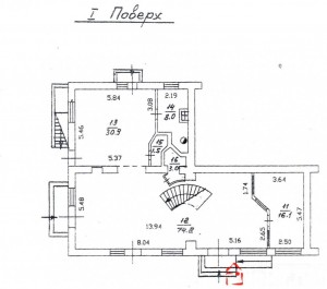
      Люстдорфская дорога, 88в — Продається торгівельний майданчик

      (г. Одесса, Приморский район)

      350000 $

      Загальна площа: 270 кв.м

      Поверх: 1

      К-ть поверхів: 5

      Предлагается к продаже помещение в оживленном районе. Общая площадь – 270 кв.м. Располагается в двух уровнях – 1-ый этаж (132 кв.м.) и подвал (133 кв.м.). Планировка: 3 зала, несколько подсобных помещений, 3 с/у. Есть помещение где можно разместить кухню (под общепит). Сделан качественный капитальный ремонт. Выполнена шумоизоляция. Установлена приточно-вытяжная система вентиляции. Своя трансформаторная подстанция. Есть две площадка перед и возле помещения. Возможна покупка с арендаторами

      Надіслати скаргу

      Закрити
      Поскаржитися на об'єкт «Люстдорфская дорога, 88в (г. Одесса, Приморский район)»
      Ваш коментар:(Необов'язково)
      Ваша скарга буде надіслана ріелтору, що розмістив об'єкт, а також адміністрації сайту АФНУ.
      Ваше ім'я:
      (Обов'язково)
      Ваш e-mail для відповіді:
      (Обов'язково)

      Коментарі