Вхід на сайт

Ел. пошта:
Пароль:

Реєстрація на сайті

Призвіще: Область:
Ім'я: Населений пункт:
    По батькові: Номер телефону:
    Ел. пошта: Компанія:
      Пароль: Посада:
      Повторіть пароль: Рік початку роботи:
      Фото:
      З правилами розміщення об'єктів погоджуюсь

      Забули пароль?

      Вкажіть ел. пошту — ми надішлемо Вам новий пароль для входу
      Ел. пошта:

      Проблема на сайті

      Закрити
      Ваш e-mail:
      (необов'язково)
      Розкажіть нам, що сталось

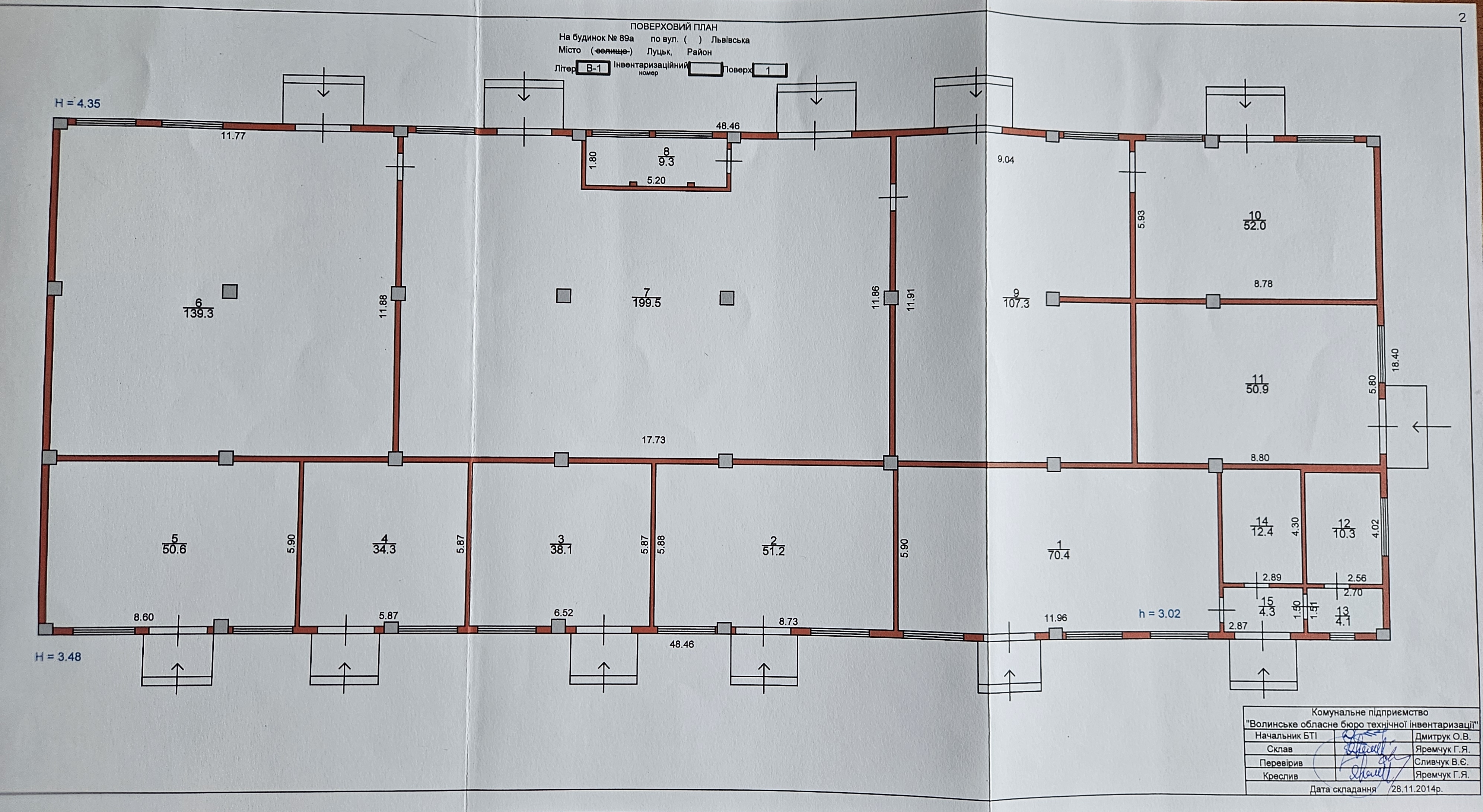
      без комісії ул. Львівська, 89а — Здається склад

      (г. Луцк)

      70 грн. за кв.м.

      Загальна площа: 834 кв.м

      Оренда cкладського приміщення по вул. Львівській у м. Луцьку!

      Розташування: вул. Львівська, 89а. Хороший доїзд, огороджена по периметру територія. Зручна транспортна розв'язка.

      Характеристики:
      - 1-й пов.;
      - площа 834 м2,
      - колонна сітка 6х6,
      - висота в середині будівлі 3,5-4,3 м.,
      - підлога бетон;
      - є можливість поділу приміщення.

      Комунікації: е/ен, потужність 20 кВт, водопостачання і каналізація - до з'ясування.

      Підходить під склад для зберігання як продовольчих так і непродовольчих товарів, виробництво, тощо.

      Вартість оренди - 70 грн/кв.м./міс.

      Відео - https://www.youtube.com/watch?v=Z0Jxk_1579M

      Менеджер об’єкту
      Данкін Олександр
      067 33 20 911

      Надіслати скаргу

      Закрити
      Поскаржитися на об'єкт «ул. Львівська, 89а (г. Луцк)»
      Ваш коментар:(Необов'язково)
      Ваша скарга буде надіслана ріелтору, що розмістив об'єкт, а також адміністрації сайту АФНУ.
      Ваше ім'я:
      (Обов'язково)
      Ваш e-mail для відповіді:
      (Обов'язково)

      Вам также могут подойти

      Садовського, 4 (г. Луцк) - Здається склад, 50 грн. за кв.м. - АФНУ

      Оновлено: 19 серпня

      Розміщено: 29 травня

      Здається склад

      г. Луцк, Садовського, 4

      50 грн. за кв.м. без комісії

      Данкін Олександр Олександрович

      керівник відділу комерційної нерухомості (Компанія "Атланта Нерухомість")

      Оренда виробничо - складського приміщення в р-н Дубнівської!

      Розташування: м. Луцьк, вул. Садовського, 4. Розвинена інфраструктура, поруч: складські, виробничі, офісні приміщення, магазин, зупинка громадського транспорту. Активний автомобільний трафік. Зручна транспортна…

      Детальніше

      Садовського, 4 (г. Луцк) - Здається склад, 50 грн. за кв.м. - АФНУ

      Оновлено: 19 серпня

      Розміщено: 29 травня

      Здається склад

      г. Луцк, Садовського, 4

      50 грн. за кв.м. без комісії

      Данкін Олександр Олександрович

      керівник відділу комерційної нерухомості (Компанія "Атланта Нерухомість")

      Оренда виробничо - складського приміщення в р-н Дубнівської!

      Розташування: м. Луцьк, вул. Садовського, 4. Розвинена інфраструктура, поруч: складські, виробничі, офісні приміщення, магазин, зупинка громадського транспорту. Активний автомобільний трафік. Зручна транспортна…

      Детальніше

      Коментарі