Вхід на сайт

Ел. пошта:
Пароль:

Реєстрація на сайті

Призвіще: Область:
Ім'я: Населений пункт:
    По батькові: Номер телефону:
    Ел. пошта: Компанія:
      Пароль: Посада:
      Повторіть пароль: Рік початку роботи:
      Фото:
      З правилами розміщення об'єктів погоджуюсь

      Забули пароль?

      Вкажіть ел. пошту — ми надішлемо Вам новий пароль для входу
      Ел. пошта:

      Проблема на сайті

      Закрити
      Ваш e-mail:
      (необов'язково)
      Розкажіть нам, що сталось

      ул. Семафорная — Продається квартира

      (г. Днепр, Самарский район)

      24500 $

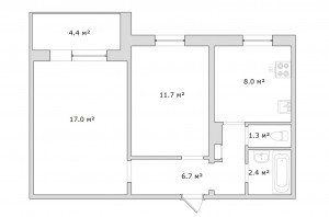
      Загальна площа: 50 кв.м

      Жила площа: 29 кв.м

      Площа кухні: 8 кв.м

      Кімнат: 2

      Поверх: 5

      К-ть поверхів: 9

      Основні характеристики:
      - житлові кімнати - 2
      - поверх - 5
      - поверховість будівлі - 9
      - наявність ліфта - є
      - розташування - не кутова
      - площа квартири - 50 м2
      - площа кухні - 8 м2
      - наявність балкона / лоджії - є
      - стан - житловий

      У вказану вартість вже входять:
      - меблі
      - техніка

      Надіслати скаргу

      Закрити
      Поскаржитися на об'єкт «ул. Семафорная (г. Днепр, Самарский район)»
      Ваш коментар:(Необов'язково)
      Ваша скарга буде надіслана ріелтору, що розмістив об'єкт, а також адміністрації сайту АФНУ.
      Ваше ім'я:
      (Обов'язково)
      Ваш e-mail для відповіді:
      (Обов'язково)

      Вам также могут подойти

      ул. Карагандинская (г. Днепр, Самарский район) - Продається квартира, 21000 $ - АФНУ

      Оновлено: 26 серпня

      Розміщено: 21 липня

      Продається квартира

      1 кімн., площа 25/13/7, поверх 5/5

      г. Днепр, ул. Карагандинская

      21000 $

      Коломойцев Виктор Васильевич

      директор (Результат)

      Основні характеристики:
      - житлові кімнати - 1
      - поверх - 5
      - поверховість будівлі - 5
      - розташування - не кутова
      - стан - ремонт

      У вказану вартість вже входять:…

      Детальніше

      пер. Пихтовый (г. Днепр, Красногвардейский район) - Продається квартира, 26000 $ - АФНУ

      Оновлено: 26 серпня

      Розміщено: 20 червня

      Продається квартира

      2 кімн., площа 51/33/6, поверх 5/5

      г. Днепр, пер. Пихтовый

      26000 $

      Коломойцев Виктор Васильевич

      директор (Результат)

      Основні характеристики:
      - житлові кімнати - 2
      - матеріал стін - цегла
      - поверх - 5
      - поверховість будівлі - 5
      - розташування - не кутова
      - площа квартири -…

      Детальніше

      ул. Карагандинская (г. Днепр, Самарский район) - Продається квартира, 21000 $ - АФНУ

      Оновлено: 26 серпня

      Розміщено: 21 липня

      Продається квартира

      1 кімн., площа 25/13/7, поверх 5/5

      г. Днепр, ул. Карагандинская

      21000 $

      Коломойцев Виктор Васильевич

      директор (Результат)

      Основні характеристики:
      - житлові кімнати - 1
      - поверх - 5
      - поверховість будівлі - 5
      - розташування - не кутова
      - стан - ремонт

      У вказану вартість вже входять:…

      Детальніше

      Коментарі