Вхід на сайт

Ел. пошта:
Пароль:

Реєстрація на сайті

Призвіще: Область:
Ім'я: Населений пункт:
    По батькові: Номер телефону:
    Ел. пошта: Компанія:
      Пароль: Посада:
      Повторіть пароль: Рік початку роботи:
      Фото:
      З правилами розміщення об'єктів погоджуюсь

      Забули пароль?

      Вкажіть ел. пошту — ми надішлемо Вам новий пароль для входу
      Ел. пошта:

      Проблема на сайті

      Закрити
      Ваш e-mail:
      (необов'язково)
      Розкажіть нам, що сталось

      без комісії вул. Кічеївська, 34 — Продається будинок

      (пгт. Ворзель, г. Ирпень)

      200000 $

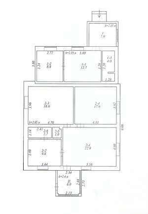
      Загальна площа: 110 кв.м

      Площа ділянки: 7 сот

      Кімнат: 5

      К-ть поверхів: 1

      ID:760 Продаж будинку, селище Ворзель (район Кічеєве), вул. Кичеївська. Загальна площа - 110,2м², земельна ділянка - 7 соток. Будинок складається з двох частин. Планування першої частини: коридор, великий зал, дві окремі кімнати, кухня, роздільний санвузол. Побудований у 2005 році з цегли, покрівля - шифер. Друга частина складається з кухні, двох кімнат (одна з них прохідна) та суміжного санвузла. Всі комунікації підключені: світло (день/ніч), газ, вода - криниця (2 насосні станції), каналізація - септик (9 кубів). Наявність двох контрольних лічильників на світло та газ (в другій частині будинку), забезпечує автономність для кожної половини будинку. Стосовно меблювання та побутової техніки будинку - по домовленості. Є погріб, територія огороджена парканом, паркомісце для автомобіля, також залитий фундамент під гараж. В пішій доступності: початкова школа, дитячий садок, продуктові магазини, зупинка громадського транспорту та залізнична станція Кічеєве. Для більш детальної інформації звертайтеся за номером телефону.

      Надіслати скаргу

      Закрити
      Поскаржитися на об'єкт «вул. Кічеївська, 34 (пгт. Ворзель, г. Ирпень)»
      Ваш коментар:(Необов'язково)
      Ваша скарга буде надіслана ріелтору, що розмістив об'єкт, а також адміністрації сайту АФНУ.
      Ваше ім'я:
      (Обов'язково)
      Ваш e-mail для відповіді:
      (Обов'язково)

      Вам также могут подойти

      вул.Молодіжна, 1 (пгт. Ворзель, г. Ирпень) - Продається будинок, 200000 $ - АФНУ

      Оновлено: 30 січня

      Розміщено: 25 липня 2024

      Продається будинок

      пгт. Ворзель, г. Ирпень, вул.Молодіжна, 1

      200000 $ без комісії

      Черкавська Діана Миколаївна

      ID:600 Пропонується до продажу сучасний двоповерховий дуплекс площею 225,9м², розташований на затишній ділянці площею 4 сотки. Будинок має п'ять просторих житлових кімнат із роздільним плануванням, що забезпечує комфортне проживання для…

      Детальніше

      вул.Соснова (пгт. Ворзель, г. Ирпень) - Продається будинок, 170000 $ - АФНУ

      Оновлено: 30 грудня 2025

      Розміщено: 20 травня 2025

      Продається будинок

      пгт. Ворзель, г. Ирпень, вул.Соснова

      170000 $ без комісії

      Черкавська Діана Миколаївна

      ID:672 Шукаєш затишний будинок? В нас є чудова пропозиція саме для тебе! Будинок розташований у лісовій частині селища Ворзель, по вулиці Соснова. Загальна площа будинку 130м2. Має дві спальні кімнати,…

      Детальніше

      Коментарі