Продаж автомайстерні. Будівля розташована в гаражному будівельному кооперативі «Зірковий» на Зарічному по вул. Електрозоводська. Також ідеально підійде під автомийку.
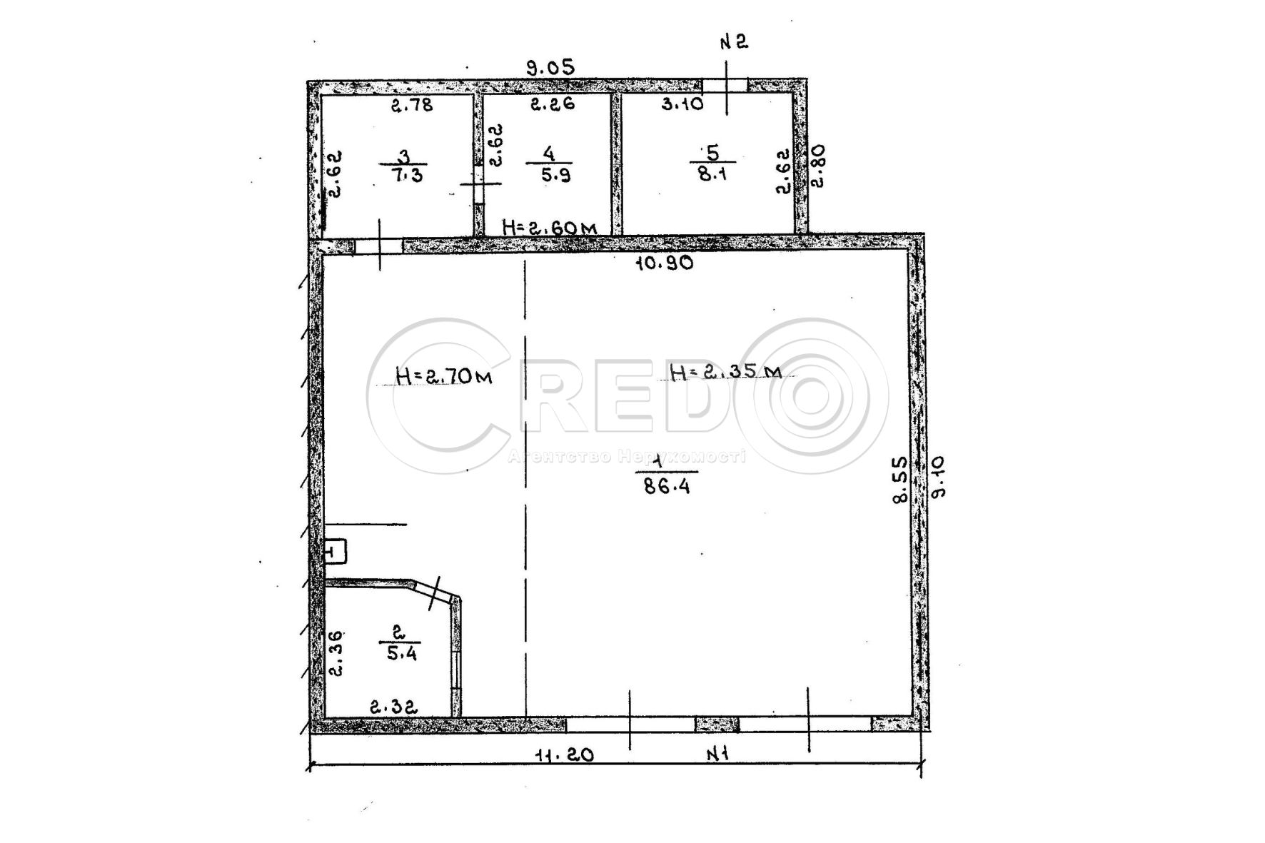
Планування об’єкту: - Загальна площа 113.1кв.м. - Висота стелі 2,70м
Комунікації: - Електроенергія 220V, 5кВт є можливість збільшити - Центральне водопостачання
Продаж – 20 000$ договірна
За будь-якими питаннями за цією або схожими пропозиціями звертайтесь за номером телефону, де вам відповість наш ріелтор Надія 098 985 09 08.