без комісії
ул. Корнейчука — Продається торгівельний майданчик
(г. Кривой Рог, Саксаганский район)
490 $ за кв.м.
Загальна площа: 2017 кв.м
Поверх: 1
К-ть поверхів: 2
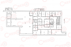
Предлагается к продаже 1-й этаж Торгового Центра по ул. И. Авраменка (Корнейчука) на "Вечернем". Общая площадь 2017,8кв.м., из них 1386,6кв.м. занимает 1-й этаж и 631,2кв.м. подвальное помещение. Комплекс в хорошем, ухоженном состоянии. Основное помещение свободной планировки, колонного типа с большим витражным фасадом на два входа. Коммуникации: электроэнергия 2 ввода, 250кВт, вода, центральная канализация, 3 с/у, душевая, отопление отключено, вытяжная система кондиционирования. Грузовой лифт, рампа во дворе. Торговый Центр расположен в густонаселенном районе города, с удобной транспортной развязкой. Напротив много магазинов, рынок, супермаркет VARUS, рядом маг. "Линкор", "Святошино", Скоростной Трамвай, автостоянка. Высокая проходимость населения. Действующий договор аренды земли. Комплекс всегда заполнен арендаторами, дает стабильную аренду. Цена 490$ за 1 кв.м. тел. 067-638-50-54
Этот и другие объекты вы можете увидеть на сайте www.ancredo.com