Вхід на сайт

Ел. пошта:
Пароль:

Реєстрація на сайті

Призвіще: Область:
Ім'я: Населений пункт:
    По батькові: Номер телефону:
    Ел. пошта: Компанія:
      Пароль: Посада:
      Повторіть пароль: Рік початку роботи:
      Фото:
      З правилами розміщення об'єктів погоджуюсь

      Забули пароль?

      Вкажіть ел. пошту — ми надішлемо Вам новий пароль для входу
      Ел. пошта:

      Проблема на сайті

      Закрити
      Ваш e-mail:
      (необов'язково)
      Розкажіть нам, що сталось

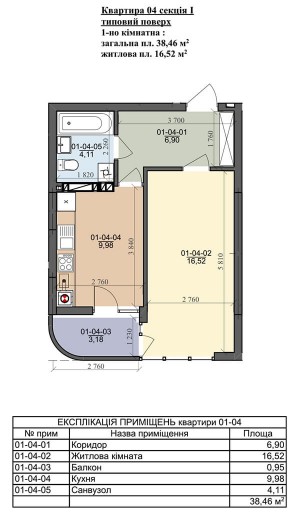
      без комісії ул. Трускавецкая — Продається квартира

      (г. Львов, Франковский район)

      28500 $

      Загальна площа: 38.46 кв.м

      Жила площа: 16.52 кв.м

      Площа кухні: 10 кв.м

      Кімнат: 1

      Поверх: 11

      К-ть поверхів: 15

      Продаж 1кк
      вул. Трускавецька (Галжитлобуд)
      буд Б, секція 1. О цикл, котел і батареї.
      Здача кінець 2020р.
      Чудовий вигляд на ліс, південна (завжди світла) сторона.

      Надіслати скаргу

      Закрити
      Поскаржитися на об'єкт «ул. Трускавецкая (г. Львов, Франковский район)»
      Ваш коментар:(Необов'язково)
      Ваша скарга буде надіслана ріелтору, що розмістив об'єкт, а також адміністрації сайту АФНУ.
      Ваше ім'я:
      (Обов'язково)
      Ваш e-mail для відповіді:
      (Обов'язково)

      Коментарі