Вхід на сайт

Ел. пошта:
Пароль:

Реєстрація на сайті

Призвіще: Область:
Ім'я: Населений пункт:
    По батькові: Номер телефону:
    Ел. пошта: Компанія:
      Пароль: Посада:
      Повторіть пароль: Рік початку роботи:
      Фото:
      З правилами розміщення об'єктів погоджуюсь

      Забули пароль?

      Вкажіть ел. пошту — ми надішлемо Вам новий пароль для входу
      Ел. пошта:

      Проблема на сайті

      Закрити
      Ваш e-mail:
      (необов'язково)
      Розкажіть нам, що сталось

      без комісії спуск Андреевский, 10-А — Здається заклад громадського харчування

      (г. Киев, Подольский район)

      15000 $

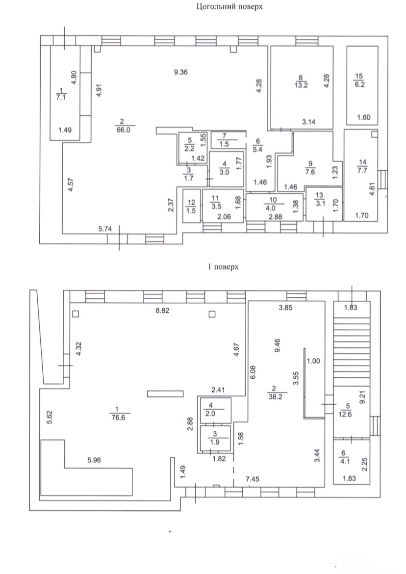
      Загальна площа: 350 кв.м

      К-ть поверхів: 3

      Окремо розташована нежитлова триповерхова будівля. Після реконструкції. Під будь-який вид діяльності. Ідеально під офісні приміщення або ресторан. В історичному центрі. Андріївський узвіз 10-А. Активний трафік. Фасадний вхід.

      Загальна площа: 350 кв.м. Вільне планування. Оздоблення під замовника. Можливість заїзду на Андріївський узвіз.

      Розвинена інфраструктура. Поряд багато історичних пам’яток архітектури. Метро "Контрактова площа".

      Власник фізична особа. Форма оплати оговорюється.

      Вартість оренди в місяць 15 тис у.е. без комісійних для орендара.

      Надіслати скаргу

      Закрити
      Поскаржитися на об'єкт «спуск Андреевский, 10-А (г. Киев, Подольский район)»
      Ваш коментар:(Необов'язково)
      Ваша скарга буде надіслана ріелтору, що розмістив об'єкт, а також адміністрації сайту АФНУ.
      Ваше ім'я:
      (Обов'язково)
      Ваш e-mail для відповіді:
      (Обов'язково)

      Коментарі