Вхід на сайт

Ел. пошта:
Пароль:

Реєстрація на сайті

Призвіще: Область:
Ім'я: Населений пункт:
    По батькові: Номер телефону:
    Ел. пошта: Компанія:
      Пароль: Посада:
      Повторіть пароль: Рік початку роботи:
      Фото:
      З правилами розміщення об'єктів погоджуюсь

      Забули пароль?

      Вкажіть ел. пошту — ми надішлемо Вам новий пароль для входу
      Ел. пошта:

      Проблема на сайті

      Закрити
      Ваш e-mail:
      (необов'язково)
      Розкажіть нам, що сталось

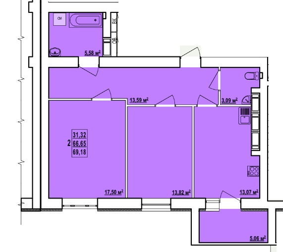
      ул. Елизаветинская, 2Б/7 — Продається квартира в новобудові

      (г. Харьков, Червонозаводский район)

      61500 $

      Загальна площа: 69 кв.м

      Жила площа: 31 кв.м

      Площа кухні: 13 кв.м

      Кімнат: 2

      Поверх: 3

      К-ть поверхів: 16

      Продаю отличную двухкомнатную квартиру общей площадью 69,18 м2 в новострое ЖК Левада-2, дом 7. Застройщик АО Трест Жилстрой 1. Квартира расположена на третьем этаже, шестнадцатиэтажного дома с наружным утеплением стен. Окна выходят во двор. Плановая сдача дома в 4 квартале 2021 года. Комплектация: Мпо окна и балконные двери, входная металлическая дверь, ввод электропроводки и электросчетчик, монтаж системы отопления с радиаторами (есть возможность установить индивидуальный счетчик тепла на квартиру), стояки холодной и горячей воды, канализации. ЖК Левада-2 современный жилой комплекс который расположен в приближенном к центру Харькова районе на ул. Елизаветинской рядом со станцией метро Проспект Гагарина. Жилой комплекс состоит из 16-этажных кирпичных домов комфорт-класса. В комплексе предусмотрено облагораживание придомовой территории, оборудованные детские площадки, комфортные зоны отдыха и занятий спортом, место для гостевой парковки и надземный многоэтажный паркинг, несколько выездов из комплекса. Удачные планировки квартир и высокое качество строительства не оставят равнодушными даже самых взыскательных покупателей. Звонки и заявки на просмотры квартир принимаются ежедневно с 9.00 до 19.00. Оформление проходит в офисе Треста Жилстрой-1. Больше на https://www.facebook.com/gilstroynovostroy/

      Озеров Александр

      Озеров Александр Александрович

      заместитель директора департамента первичной недвижимости (КРОНА Производственно-правовая фирма)

      +380 (50) 135-35... Показати номер телефона +380 (50) 135-35-07

      Поскаржитися на об'єкт

      Надіслати скаргу

      Закрити
      Поскаржитися на об'єкт «ул. Елизаветинская, 2Б/7 (г. Харьков, Червонозаводский район)»
      Ваш коментар:(Необов'язково)
      Ваша скарга буде надіслана ріелтору, що розмістив об'єкт, а також адміністрації сайту АФНУ.
      Ваше ім'я:
      (Обов'язково)
      Ваш e-mail для відповіді:
      (Обов'язково)

      Коментарі