Вхід на сайт

Ел. пошта:
Пароль:

Реєстрація на сайті

Призвіще: Область:
Ім'я: Населений пункт:
    По батькові: Номер телефону:
    Ел. пошта: Компанія:
      Пароль: Посада:
      Повторіть пароль: Рік початку роботи:
      Фото:
      З правилами розміщення об'єктів погоджуюсь

      Забули пароль?

      Вкажіть ел. пошту — ми надішлемо Вам новий пароль для входу
      Ел. пошта:

      Проблема на сайті

      Закрити
      Ваш e-mail:
      (необов'язково)
      Розкажіть нам, що сталось

      без комісії Незалежності, 10 — Продається квартира в новобудові

      (г. Чернигов, Новозаводской район)

      26000 грн. за кв.м.

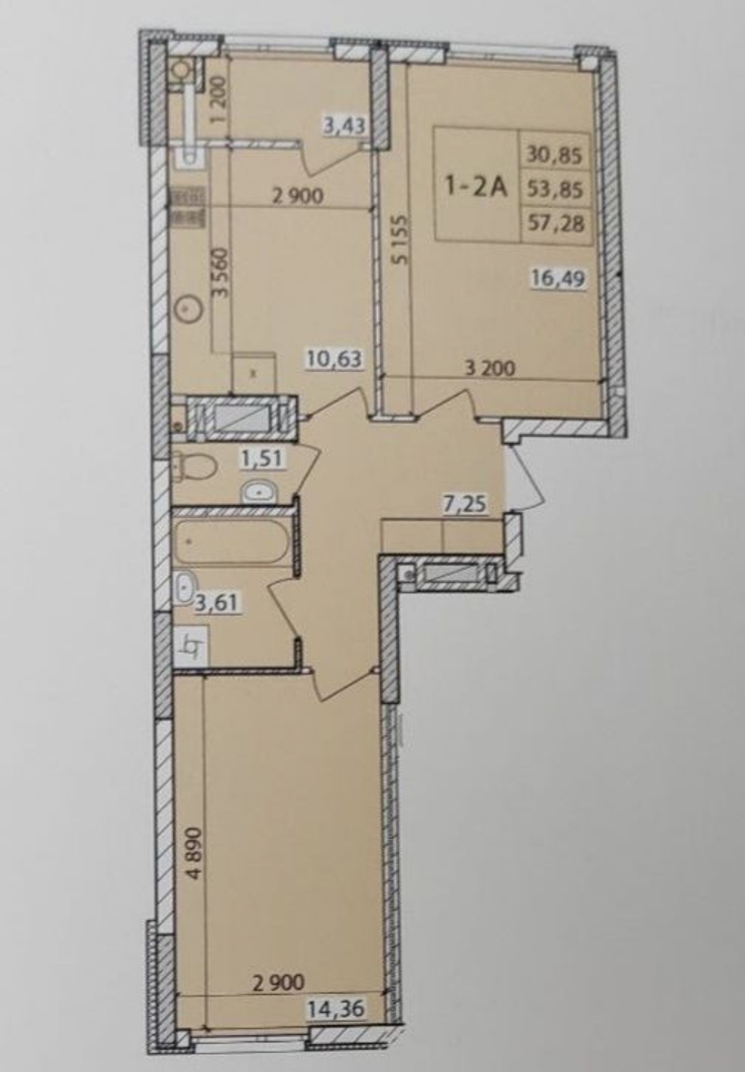
      Загальна площа: 57 кв.м

      Жила площа: 31 кв.м

      Площа кухні: 11 кв.м

      Кімнат: 2

      Поверх: 4

      К-ть поверхів: 10

      Продам 2-кімнатну квартиру в новому ЖК Масани-сіті, по вул. Красносільського
      Здача будинку літо 2023 року!

      Загальна площа: 57,49м

      Переваги:
      новий 10-поверховий монолітно-каркасний будинок з ізоляцією всіх зовнішніх стін
      - в квартирі встановлений двоконтурний газовий котел (автономне опалення)
      - встановлено лічильники води, газу, електроенергії
      - у квартирах цього будинку встановлені 5-ти камерні металопластикові вікна з двокамерними склопакетами та енергозберігаючим склом
      - зроблена звукоізоляція міжквартирних перегородок
      - квартира в середині будинку

      Ціна 26000грн/м - 1494740грн

      Ваші діти будуть в захваті! На території житлового комплексу буде власний просторий дитячий та спортивний майданчик під відкритим небом, де діти різного віку зможуть провести час дуже цікаво і найголовніше - безпечно.

      Поряд є все необхідне : школи, дитячі садки, магазини, супермаркет, зупинки і багато іншого.

      Телефонуйте прямо зараз і записуйтесь на перегляд!

      Надіслати скаргу

      Закрити
      Поскаржитися на об'єкт «Незалежності, 10 (г. Чернигов, Новозаводской район)»
      Ваш коментар:(Необов'язково)
      Ваша скарга буде надіслана ріелтору, що розмістив об'єкт, а також адміністрації сайту АФНУ.
      Ваше ім'я:
      (Обов'язково)
      Ваш e-mail для відповіді:
      (Обов'язково)

      Коментарі