Вхід на сайт

Ел. пошта:
Пароль:

Реєстрація на сайті

Призвіще: Область:
Ім'я: Населений пункт:
    По батькові: Номер телефону:
    Ел. пошта: Компанія:
      Пароль: Посада:
      Повторіть пароль: Рік початку роботи:
      Фото:
      З правилами розміщення об'єктів погоджуюсь

      Забули пароль?

      Вкажіть ел. пошту — ми надішлемо Вам новий пароль для входу
      Ел. пошта:

      Проблема на сайті

      Закрити
      Ваш e-mail:
      (необов'язково)
      Розкажіть нам, що сталось

      ул. Сковороди — Продається таунхаус

      (с. Лапаевка, Пустомытовский район)

      105000 €

      Загальна площа: 150 кв.м

      Кімнат: 4

      К-ть поверхів: 2

      Продаж котеджу в с. Лапаївка від забудовника.

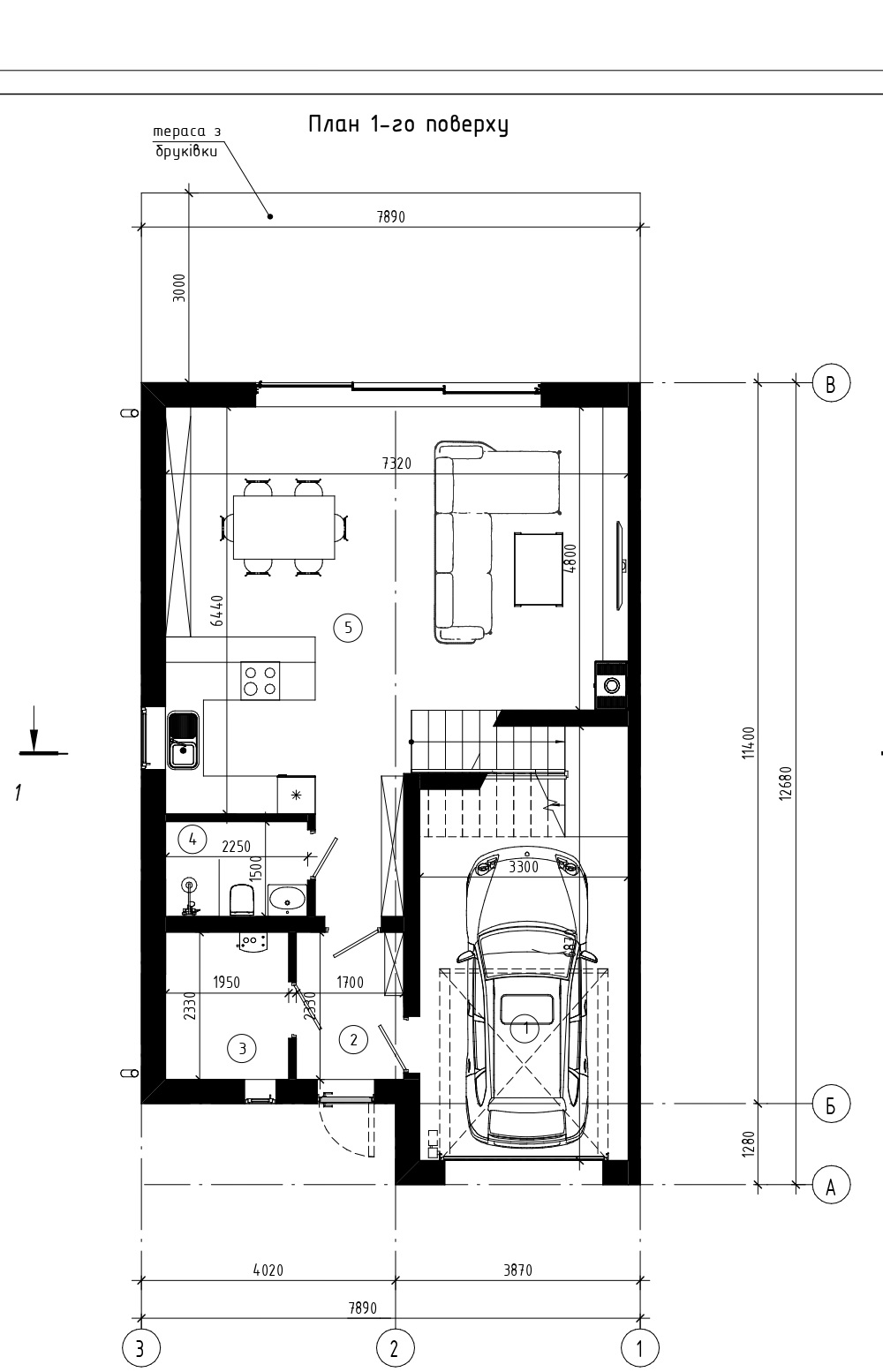
      1-ий поверх
      Гараж 21,47 м²
      Тамбур 3,96 м²
      Паливна 4,54 м²
      Санвузол 3,38 м²
      Кухня-вітальня 44,88 м²
      Загальна: 78,23 м²

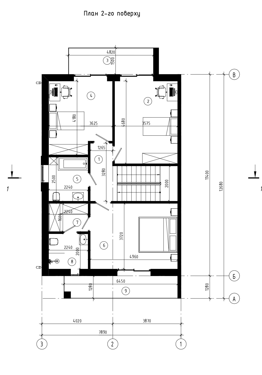
      2-ий поверх
      Коридор 4,68 м²
      Житлова кімната 16,73 м²
      Балкон 2,13 м²
      Житлова кімната 14,07 м²
      Санвузол 5,60 м²
      Житлова кімната 18,45 м²
      Гардероб 3,58 м²
      Санвузол 4,48 м²
      Балкон 2,39 м²
      Загальна: 72,12 м²

      Котедж недалеко озера і лісу.
      Світло,вода, газ і центральна каналізація.
      Розвинена інфраструктура.
      Поряд магазини, перукарні, поліклініка, аптека, сучасний ліцей у якому 7 спортзалів, музична школа, дитячі, спортивні та мультифункційні майданчики.
      Розташування 1 км до METRO і Епіцентру.

      Надіслати скаргу

      Закрити
      Поскаржитися на об'єкт «ул. Сковороди (с. Лапаевка, Пустомытовский район)»
      Ваш коментар:(Необов'язково)
      Ваша скарга буде надіслана ріелтору, що розмістив об'єкт, а також адміністрації сайту АФНУ.
      Ваше ім'я:
      (Обов'язково)
      Ваш e-mail для відповіді:
      (Обов'язково)

      Коментарі