Вхід на сайт

Ел. пошта:
Пароль:

Реєстрація на сайті

Призвіще: Область:
Ім'я: Населений пункт:
    По батькові: Номер телефону:
    Ел. пошта: Компанія:
      Пароль: Посада:
      Повторіть пароль: Рік початку роботи:
      Фото:
      З правилами розміщення об'єктів погоджуюсь

      Забули пароль?

      Вкажіть ел. пошту — ми надішлемо Вам новий пароль для входу
      Ел. пошта:

      Проблема на сайті

      Закрити
      Ваш e-mail:
      (необов'язково)
      Розкажіть нам, що сталось

      ул. Штилевая, 1 — Продається квартира в новобудові

      (г. Одесса, Суворовский район)

      35000 $

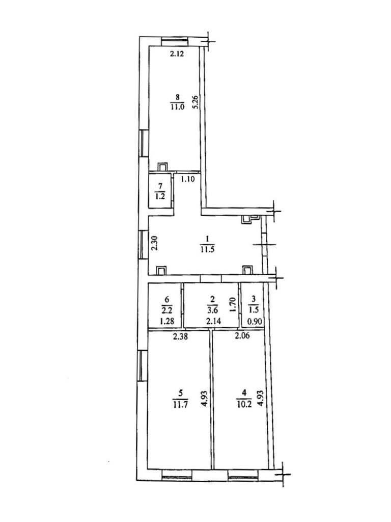
      Загальна площа: 53 кв.м

      Жила площа: 22 кв.м

      Площа кухні: 11 кв.м

      Кімнат: 2

      Поверх: 3

      К-ть поверхів: 23

      Штилевая / Николаевская дорога, продам квартиру, расположенную на 3 этаже нового 23-х этажного жилого комплекса «Лузановский Парк», 53/22/11 кв.м, две раздельные комнаты, удобная кухня, раздельный сан. узел, гардеробная, холл, удачная планировка с возможностью разделения на три мини-гостиничных номера со своими сан. узлами и общей кухней, очень удобный район и для жизни и под арендный бизнес, рядом гипермаркет «Metro», окна на запад, красивый вид в сторону Куяльницкого лимана, дом сдан, Свидетельство о праве собственности получено, очень перспективная квартира под отделку в великолепном курортном и привлекательном для туристов районе через дорогу от моря и пляжа в Лузановке!

      Красотов Алексей

      Красотов Алексей

      Директор филиала (Александр-N) , Риэлтор (Александр-N) , Центральный филиал (Александр-N)

      +380 (50) 333-30... Показати номер телефона +380 (50) 333-30-45, +380 (97) 577-77-37

      Поскаржитися на об'єкт

      Надіслати скаргу

      Закрити
      Поскаржитися на об'єкт «ул. Штилевая, 1 (г. Одесса, Суворовский район)»
      Ваш коментар:(Необов'язково)
      Ваша скарга буде надіслана ріелтору, що розмістив об'єкт, а також адміністрації сайту АФНУ.
      Ваше ім'я:
      (Обов'язково)
      Ваш e-mail для відповіді:
      (Обов'язково)

      Коментарі