Вхід на сайт

Ел. пошта:
Пароль:

Реєстрація на сайті

Призвіще: Область:
Ім'я: Населений пункт:
    По батькові: Номер телефону:
    Ел. пошта: Компанія:
      Пароль: Посада:
      Повторіть пароль: Рік початку роботи:
      Фото:
      З правилами розміщення об'єктів погоджуюсь

      Забули пароль?

      Вкажіть ел. пошту — ми надішлемо Вам новий пароль для входу
      Ел. пошта:

      Проблема на сайті

      Закрити
      Ваш e-mail:
      (необов'язково)
      Розкажіть нам, що сталось

      без комісії ул. Стуса Василия, 35а — Продається офіс

      (г. Киев, Святошинский район)

      1500 $ за кв.м.

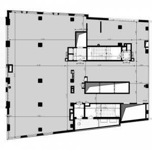
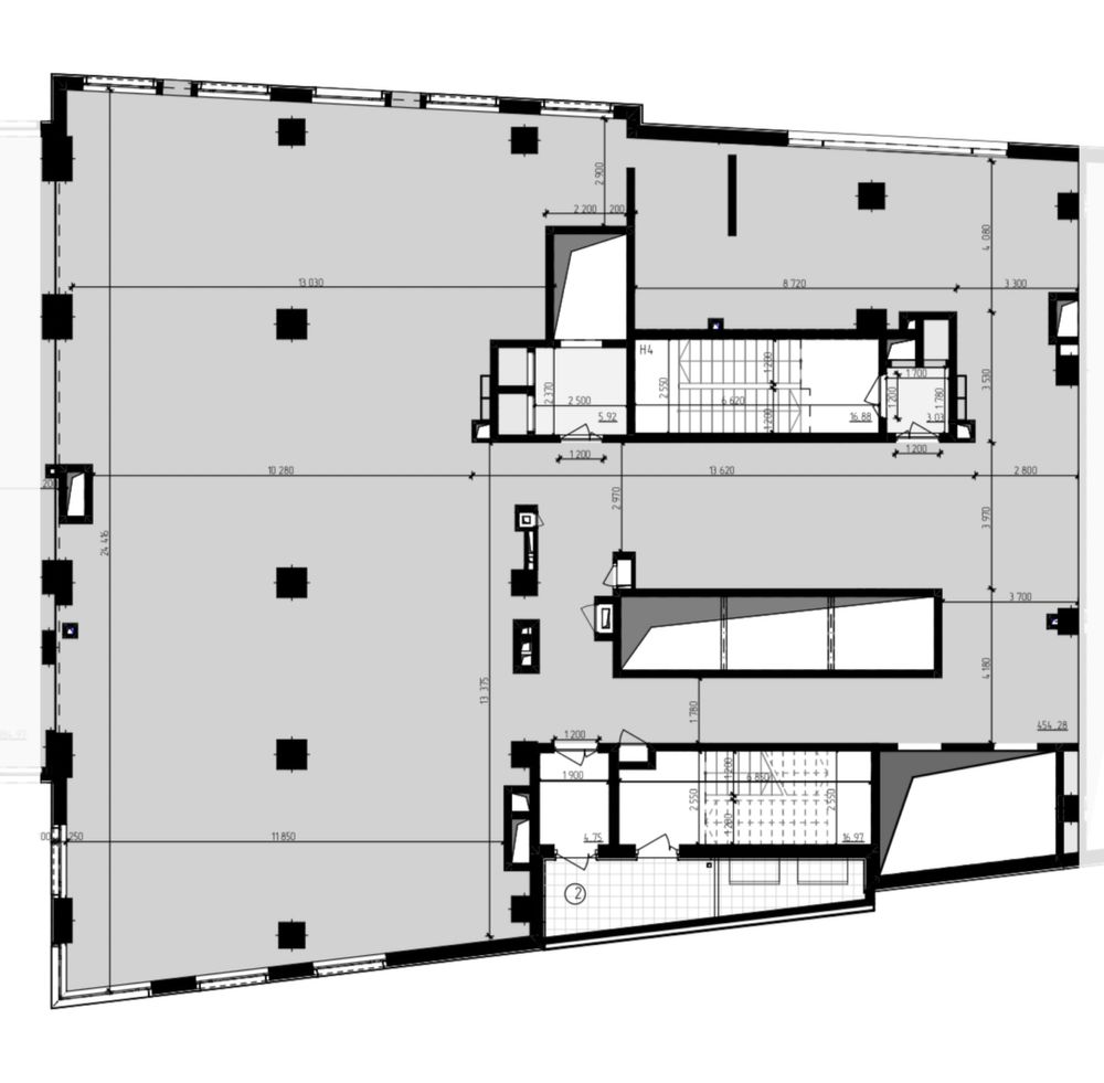
      Загальна площа: 450 кв.м

      Поверх: 2

      К-ть поверхів: 20

      Без комиссии для покупателя!

      Продажа коммерческого помещения от собственника, общей площадью 450 м2 на 2-м этаже, фасад в БЦ « Be the One» класса «А»
      По адресу ул. В. Стуса 35А. 2 этаж
      45 квт
      БЦ введено в эксплуатацию, продажа по переуступке.

      Высота потолков 3,4 м
      Стоимость 1 м2 - 1500 USD
      Идея Be the One в совмещении бизнес-недвижимости и жилого пространства 50/50. Секции отличаются и архитектурой: бизнес-центр класса «А» полностью стеклянный, а жилая часть только с панорамными окнами и открытыми балконами.
      Внутри бизнес-центра офисы площадью от 42 до 4000 м², ресторан, коворкинг, учебный центр и конференц-залы.
      Инфраструктура:

      Для продуктовых покупок в минуте возле дома Varus, в 8 минутах Novus и в 10 минутах «АТБ». Также в пешей доступности торговый центр «Академ Сити» и «ВМБ», работают несколько ресторанов и кафе.

      Для занятий спортом в Be the One отведен целый этаж под фитнес-клуб Sport Life. Также пешком за 5-10 минут можно дойти до классических тренажерных залов, сетевых фитнес-клубов и айкидо клуба «Такемусю Айки».
      До ст. М. Житомирская - 10 минут пешком.
      Цена 1500 $ за м 2.

      Надіслати скаргу

      Закрити
      Поскаржитися на об'єкт «ул. Стуса Василия, 35а (г. Киев, Святошинский район)»
      Ваш коментар:(Необов'язково)
      Ваша скарга буде надіслана ріелтору, що розмістив об'єкт, а також адміністрації сайту АФНУ.
      Ваше ім'я:
      (Обов'язково)
      Ваш e-mail для відповіді:
      (Обов'язково)

      Коментарі