Вхід на сайт

Ел. пошта:
Пароль:

Реєстрація на сайті

Призвіще: Область:
Ім'я: Населений пункт:
    По батькові: Номер телефону:
    Ел. пошта: Компанія:
      Пароль: Посада:
      Повторіть пароль: Рік початку роботи:
      Фото:
      З правилами розміщення об'єктів погоджуюсь

      Забули пароль?

      Вкажіть ел. пошту — ми надішлемо Вам новий пароль для входу
      Ел. пошта:

      Проблема на сайті

      Закрити
      Ваш e-mail:
      (необов'язково)
      Розкажіть нам, що сталось

      Трускавецька — Продається квартира

      (г. Львов, Франковский район)

      41000 $

      Загальна площа: 41 кв.м

      Жила площа: 19 кв.м

      Площа кухні: 10 кв.м

      Кімнат: 1

      Поверх: 15

      К-ть поверхів: 15

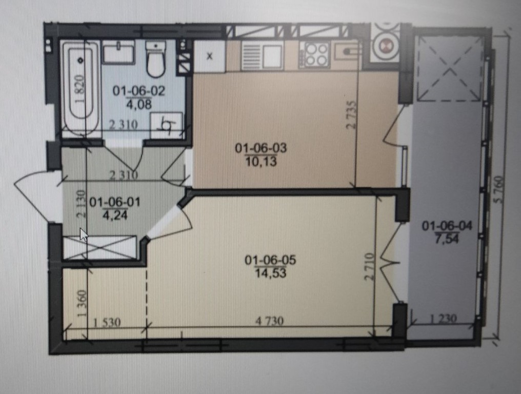
      Продаж однокімнатної квартири у новобудові на п'ятнадцятому поверсі за адресою вул.Трускавецька м.Львова . Забудовник ГалЖитлоБуд .
      Загальна площа 40,52м.кв. житлова -18,5 м.кв., кухня - 10, 13 м.кв.
      З кухні вихід на балкон , у кімнаті вихід на балкон та гардеробна . Сумісний санвузол .
      Будинок збудований із цегли , утеплений пінополістиролом .
      Квартира в стані від будівельників,залита стяжка , штукатурка.
      Встановленні металопластикові вікна , металеві вхідні двері . Встановлять двофункційний газовий котел та радіатори .
      У ЖК є підземний паркінг , на перших поверхах комерція .
      Район активно розбудовується , в пішій доступності є школа та садок , продуктові магазини , аптеки і тд .

      По документах переуступка.
      код 11792

      Надіслати скаргу

      Закрити
      Поскаржитися на об'єкт «Трускавецька (г. Львов, Франковский район)»
      Ваш коментар:(Необов'язково)
      Ваша скарга буде надіслана ріелтору, що розмістив об'єкт, а також адміністрації сайту АФНУ.
      Ваше ім'я:
      (Обов'язково)
      Ваш e-mail для відповіді:
      (Обов'язково)

      Коментарі