Вхід на сайт

Ел. пошта:
Пароль:

Реєстрація на сайті

Призвіще: Область:
Ім'я: Населений пункт:
    По батькові: Номер телефону:
    Ел. пошта: Компанія:
      Пароль: Посада:
      Повторіть пароль: Рік початку роботи:
      Фото:
      З правилами розміщення об'єктів погоджуюсь

      Забули пароль?

      Вкажіть ел. пошту — ми надішлемо Вам новий пароль для входу
      Ел. пошта:

      Проблема на сайті

      Закрити
      Ваш e-mail:
      (необов'язково)
      Розкажіть нам, що сталось

      без комісії Щерби, 26/1 — Продається будинок

      (г. Хмельницкий, Раково)

      138000 $

      Загальна площа: 290 кв.м

      Площа ділянки: 14 сот

      Кімнат: 4

      К-ть поверхів: 2

      Зміна ціни: з 145000$ на 138000$.
      Продам землю з монолітною коробкою в Раково, вул. Щерби 26/1.
      Кінцева зупинка (від АТБ 3хв. пішки).
      138000$ + оформлення (тільки земля).
      Земля: 14 соток
      Кад.№: 6810100000:25:002:0432
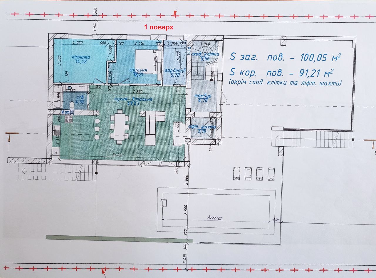
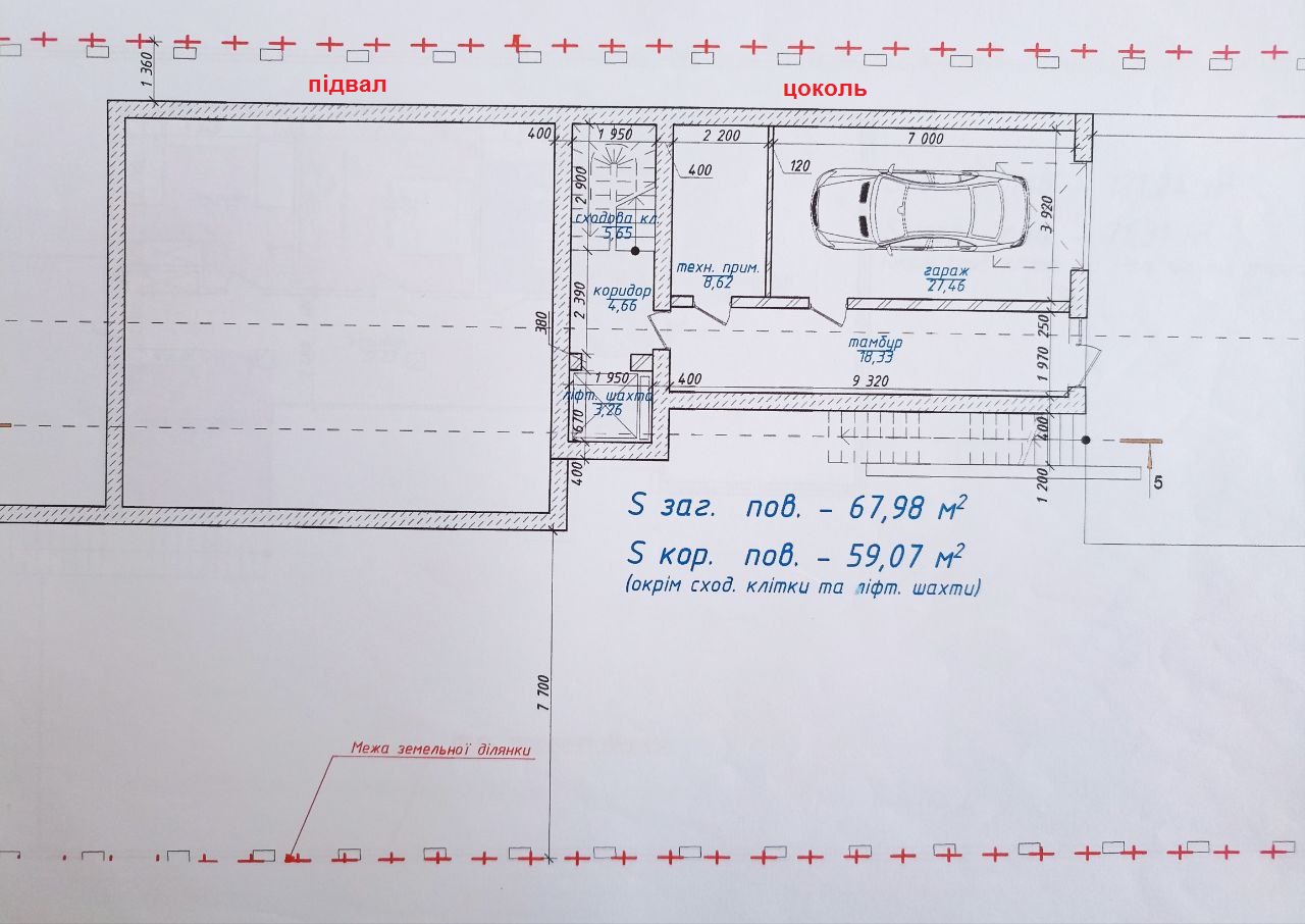
      Будинок: 290/70/50кв.м. (підвал та частина терас не враховані в площу)
      Цоколь: гараж з автоматичними воротами, тех.приміщення, підвал.
      1й поверх: велика кухня-вітальня, 2 кімнати, с/в, великі панорамні розсувні вікна, подвійне світло.
      2й поверх: 2 кімнати, с/в, зона відпочинку, тераса.
      Пласка криша з зоною відпочинку.
      Ліфтова шахта з цокольного поверху.
      По землі зроблена геологія, геодезія. Вода - своя скважина. Септик подвійний. Електрика - 380В, 25кВт. Газ не підводили. Гідроізоляція.
      Проект на будинок.
      В експлуатацію будинок не вводився.

      Надіслати скаргу

      Закрити
      Поскаржитися на об'єкт «Щерби, 26/1 (г. Хмельницкий, Раково)»
      Ваш коментар:(Необов'язково)
      Ваша скарга буде надіслана ріелтору, що розмістив об'єкт, а також адміністрації сайту АФНУ.
      Ваше ім'я:
      (Обов'язково)
      Ваш e-mail для відповіді:
      (Обов'язково)

      Вам также могут подойти

      пров.Селекційний, 12 (г. Хмельницкий) - Продається будинок, 140000 $ - АФНУ

      Оновлено: 8 лютого

      Розміщено: 29 березня 2024

      Продається будинок

      г. Хмельницкий, пров.Селекційний, 12

      140000 $ без комісії

      Осташевський Олексій Іванович

      Спеціаліст з нерухомості (ЦН "Золотий ключ")

      Продам землю з коробкою. Виставка, АС1, пров.Селекційний 12.
      140000$ + витрати по переоформленню (тільки земля 1%)
      Земля: 15 соток. (25*60м)
      Кад.№: 6810100000:18:005:0145.
      Призначення: 02.01 - для будівництва та обслуговування житлового…

      Детальніше

      проїзд 4-й Черешневий, 15 (г. Хмельницкий) - Продається будинок, 152000 $ - АФНУ

      Оновлено: 8 лютого

      Розміщено: 9 вересня 2025

      Продається будинок

      г. Хмельницкий, проїзд 4-й Черешневий, 15

      152000 $ без комісії

      Осташевський Олексій Іванович

      Спеціаліст з нерухомості (ЦН "Золотий ключ")

      Продам 2-поверховий будинок з новим сучасним ремонтом і повністю автономним по електриці.
      Хмельницький, р-н. Піденно-Західний, СТ «Кооператор» Черешневий 4-й проїзд буд.15
      Площа: 163.1/58.8/12.1 кв.м
      Ділянка: 6.49 сотки
      Вартість: 152000$ +…

      Детальніше

      пров.Селекційний, 12 (г. Хмельницкий) - Продається будинок, 140000 $ - АФНУ

      Оновлено: 8 лютого

      Розміщено: 29 березня 2024

      Продається будинок

      г. Хмельницкий, пров.Селекційний, 12

      140000 $ без комісії

      Осташевський Олексій Іванович

      Спеціаліст з нерухомості (ЦН "Золотий ключ")

      Продам землю з коробкою. Виставка, АС1, пров.Селекційний 12.
      140000$ + витрати по переоформленню (тільки земля 1%)
      Земля: 15 соток. (25*60м)
      Кад.№: 6810100000:18:005:0145.
      Призначення: 02.01 - для будівництва та обслуговування житлового…

      Детальніше

      Коментарі