Вхід на сайт

Ел. пошта:
Пароль:

Реєстрація на сайті

Призвіще: Область:
Ім'я: Населений пункт:
    По батькові: Номер телефону:
    Ел. пошта: Компанія:
      Пароль: Посада:
      Повторіть пароль: Рік початку роботи:
      Фото:
      З правилами розміщення об'єктів погоджуюсь

      Забули пароль?

      Вкажіть ел. пошту — ми надішлемо Вам новий пароль для входу
      Ел. пошта:

      Проблема на сайті

      Закрити
      Ваш e-mail:
      (необов'язково)
      Розкажіть нам, що сталось

      без комісії ул. Зелёная, 151 — Продається квартира в новобудові

      (г. Львов, Франковский район)

      82000 $

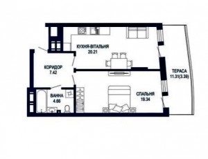
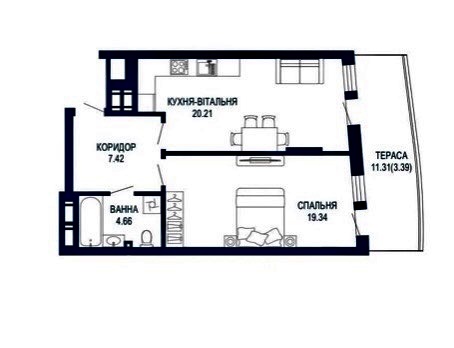
      Загальна площа: 55 кв.м

      Жила площа: 20 кв.м

      Площа кухні: 20 кв.м

      Кімнат: 1

      Поверх: 7

      К-ть поверхів: 8

      БЕЗ КОМІСІЇ ДЛЯ ПОКУПЦЯ
      ПРОДАЖ 1НО КІМ КВАРТИРИ
      В ЖК ВІКІНГ ПАРК ( в кораблику)
      вул. Зелена 151
      Загальна площа 55,5кв..м.
      Кухня 20 кв.м.,
      Спальня 20 кв.м.,
      С/в суміжний
      Вихід на відкритий балкон з кухні та з кімнати
      Штукатурка, чорнова стяжка, газовий котел та лічильники встановлено
      7 поверх /8 ми поверховий
      будинок зданий
      Є право власності
      Ціна 82000$
      0975543330 Олена АН АМБАССАДОР

      Надіслати скаргу

      Закрити
      Поскаржитися на об'єкт «ул. Зелёная, 151 (г. Львов, Франковский район)»
      Ваш коментар:(Необов'язково)
      Ваша скарга буде надіслана ріелтору, що розмістив об'єкт, а також адміністрації сайту АФНУ.
      Ваше ім'я:
      (Обов'язково)
      Ваш e-mail для відповіді:
      (Обов'язково)

      Коментарі