Вхід на сайт

Ел. пошта:
Пароль:

Реєстрація на сайті

Призвіще: Область:
Ім'я: Населений пункт:
    По батькові: Номер телефону:
    Ел. пошта: Компанія:
      Пароль: Посада:
      Повторіть пароль: Рік початку роботи:
      Фото:
      З правилами розміщення об'єктів погоджуюсь

      Забули пароль?

      Вкажіть ел. пошту — ми надішлемо Вам новий пароль для входу
      Ел. пошта:

      Проблема на сайті

      Закрити
      Ваш e-mail:
      (необов'язково)
      Розкажіть нам, що сталось

      без комісії пр. Победы, 67 — Здається офіс в новобудові

      (г. Киев, Святошинский район)

      6 $ за кв.м.

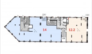
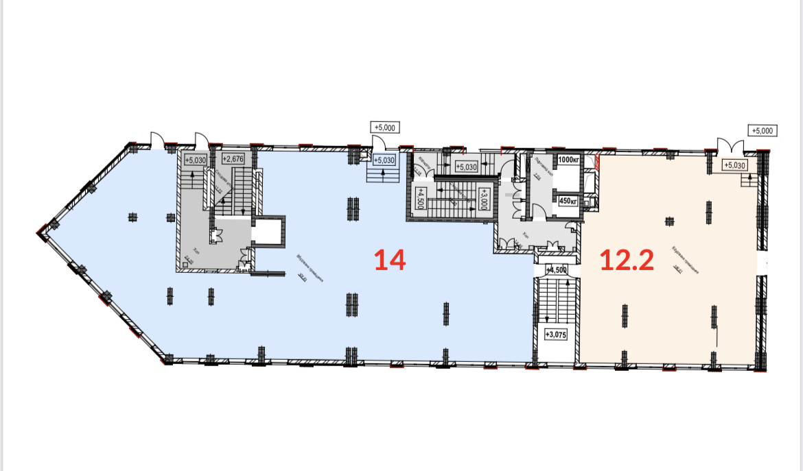
      Загальна площа: 531 кв.м

      Пропозиція з оренди приміщення

      Вільне просторе приміщення з чудовим потенціалом розташоване в затишному житловому комплексі "San Francisco Creative House", вхід зі сторони "Нивки-Парк". Ця можливість ідеально підходить для реалізації ваших бізнес-проектів або створення комфортного робочого простору.

      Основні характеристики:

      Висота стелі: 3,3 метри
      Загальна площа: 531,8 м (корисна площа без сходової клітки - 496,6 м), складається з двох окремих частин площею 325,8 м та 170,8 м (у разі необхідності можуть орендуватись окремо)
      Вільне планування "Open Space"
      Мокрі точки: 2
      Потужність електропостачання: 74,56 кВт
      Незалежна вентиляція
      12 фасадних вікон для достатнього природного освітлення

      Додаткові переваги:

      Прямий фасадний доступ до приміщення зі сторони житлового комплексу
      Прямі виходи просто з приміщення до внутрішньої території з пандусом для зручного вантаження
      Центральний водопровід та каналізація, централізоване опалення

      Призначення приміщення вільне, ідеально підходить для:

      Магазинів (меблів, будматеріалів, побутової техніки, сантехніки тощо)
      Шоу-румів
      Спеціалізованих клінік або клінік сімейної медицини
      Кабінетів стоматолога, сімейного лікаря, приватних медичних практик
      Wellness, SPA, Центрів естетичної медицини
      Навчальних центрів

      Не упустіть цю вигідну можливість! Зв'яжіться з нами для отримання додаткової інформації та організації перегляду.

      Пропонуємо гнучку орендну ставку залежно від умов від 6$/кв.м.

      Без комісії для орендаря!

      СПП 50% для колег

      Надіслати скаргу

      Закрити
      Поскаржитися на об'єкт «пр. Победы, 67 (г. Киев, Святошинский район)»
      Ваш коментар:(Необов'язково)
      Ваша скарга буде надіслана ріелтору, що розмістив об'єкт, а також адміністрації сайту АФНУ.
      Ваше ім'я:
      (Обов'язково)
      Ваш e-mail для відповіді:
      (Обов'язково)

      Коментарі