без комісії
Велика Бердичівська, 72 — Продається заклад громадського харчування
(г. Житомир, Королевский район)
1399999 $
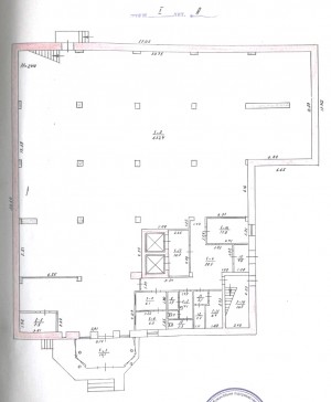
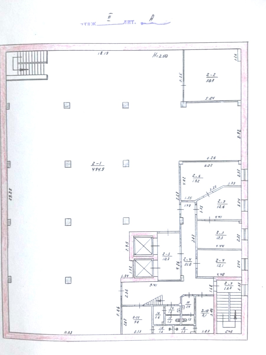
Загальна площа: 1475 кв.м
К-ть поверхів: 2
Ексклюзивна пропозиція на ПРОДАЖ окремого приміщення магазину та приватизованої фасадної ділянки за адресою: м. Житомир, вул. Бердичівська 72
Запрошуємо Вас до розгляду унікальну можливості для розвитку вашого бізнесу в місті Житомир. Ця нерухомість вражає своїм потенціалом, розташуванням та інфраструктурою, і може стати ідеальним місцем для Вашого КОМЕРЦІЙНОГО ПРОЕКТУ.
Площа приміщення: 1475 м2 Площа земельної ділянки: 42 соток У ВЛАСНОСТІ Характеристики приміщення: Капітальне приміщення, розміщене в два поверха, з підведенням всіх центральних комунікацій. Інфраструктура: Приміщення має 2 заїзди, що сприяє зручному руху власного та клієнтського автотранспорту. Додатковим бонусом є велика парковка для авто. Електропостачання: Забезпечено 50 кВт електроенергії. Розташування: Ідеальна транспортна розв'язка, знаходження на перехресті основних вулиць міста Житомира.
Потенціал: ПРИМІЩЕННЯ ідеально підходить для будь-якого комерційного проекту, що потребує простору та зручного розташування.
Може бути використане для РЕКОНСТРУКЦІЇ та БУДІВНИЦТВА БАГАТОПОВЕРХОВОГО БУДИНКУ, торгово-розважального комплексу, приватної клініки, супермаркету чи будь-якого іншого бізнесу.
БЕЗ КОМІСІЇ!!!
Звертайтеся для отримання більш детальної інформації та організації перегляду!