Вхід на сайт

Ел. пошта:
Пароль:

Реєстрація на сайті

Призвіще: Область:
Ім'я: Населений пункт:
    По батькові: Номер телефону:
    Ел. пошта: Компанія:
      Пароль: Посада:
      Повторіть пароль: Рік початку роботи:
      Фото:
      З правилами розміщення об'єктів погоджуюсь

      Забули пароль?

      Вкажіть ел. пошту — ми надішлемо Вам новий пароль для входу
      Ел. пошта:

      Проблема на сайті

      Закрити
      Ваш e-mail:
      (необов'язково)
      Розкажіть нам, що сталось

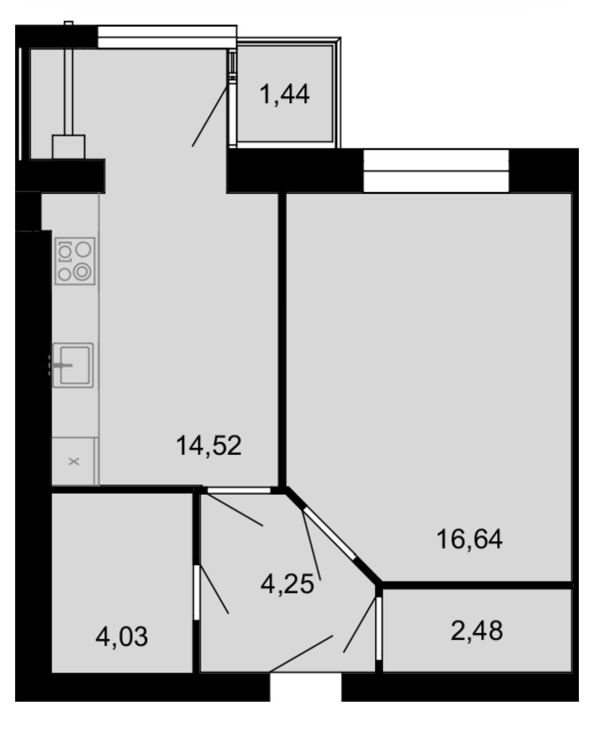
      Немирівське шосе, 94/16 — Продається квартира

      (г. Винница, Замостянский район)

      43000 $

      Загальна площа: 43 кв.м

      Жила площа: 17 кв.м

      Площа кухні: 14 кв.м

      Кімнат: 1

      Поверх: 3

      К-ть поверхів: 10

      Продаж квартири в ЖК Сімейний Комфорт - секція ЗДАНА, можлива єОселя На території комплексу є багато різноманітних магазинів, супермаркет та власний дитячий садочок; Зручний 3-й поверх, не кутова, є гардеробна.

      Надіслати скаргу

      Закрити
      Поскаржитися на об'єкт «Немирівське шосе, 94/16 (г. Винница, Замостянский район)»
      Ваш коментар:(Необов'язково)
      Ваша скарга буде надіслана ріелтору, що розмістив об'єкт, а також адміністрації сайту АФНУ.
      Ваше ім'я:
      (Обов'язково)
      Ваш e-mail для відповіді:
      (Обов'язково)

      Коментарі