Будинок зданий навесні 2024 року. Створено ОСББ. Можлива як переуступка, так і нотаріальне оформлення.
Велика кухня 17м2 із ВЕЛИКИМ ПАНОРАМНИМ вікном – мрія хазяйки. Чорнова. АГВ - індивідуальний газовий котел PROTHERM, на гарантії. В квартирі проведена якісна мідна електропроводка за індивідуальним проектом. Поштукатурені всі цегляні стіни. Встановлено якісні ефективні радіатори опалення.
ЖК «Західний» - якісне будівництво, малоповерхова забудова. Цегляні стіни з керамічної цегли М125 товщиною 510 мм. + енергоефективне зовнішнє утеплення товщиною 12 см. Якісні ліфти HAS, Туреччина. Притік повітря для спалювання в газовому котлі відбувається по спеціально облаштованим вентиляційним каналам тому повітря в квартирі завжди чисте та свіже, не спалюється. Вікна - з енергозберігаючими технологіями - 5-камерний профіль Veka, 2-камерний енергозберігаючий склопакет. Всі лічильники.
В житловому комплексі – широко представлена інфраструктура : Супермаркет «Грош», Салон краси, Кав’ярня, магазин «Галя балувана», відділення «Нова пошта» та «Укрпошта», спеціалізовані продуктові та промислові магазини як в комплексі, так і в кроковій доступності від комплексу. До ЖК «Західний» регулярно курсує новий тролейбусний маршрут № 18, маршрутки 16А та 11Б.
Будинок зданий в 2021 році. Нотаріальне оформлення. ЖК «Західний» - якісне будівництво, малоповерхова забудова. Цегляні стіни з керамічної цегли М125 товщиною 510 мм. + енергоефективне зовнішнє утеплення товщиною 12 см.…
Будинок зданий в 2021 році. Нотаріальне оформлення. ЖК «Західний» - якісне будівництво, малоповерхова забудова. Цегляні стіни з керамічної цегли М125 товщиною 510 мм. + енергоефективне зовнішнє утеплення товщиною 12 см.…
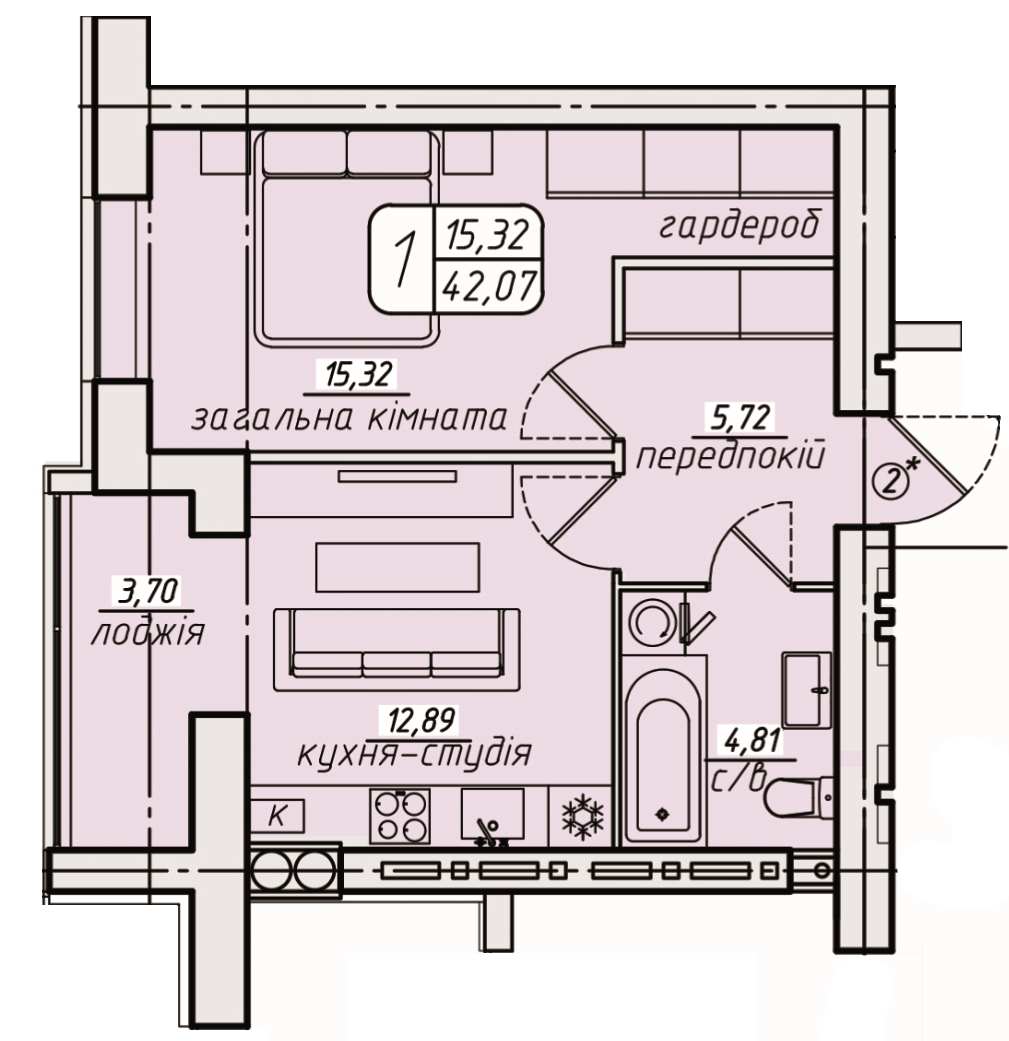
Продаю 1 кімн. квартиру 47.13 кв.м. в новому сучасному житловому комплексі "Західний". Будинок № 7 Квартира з АГВ, не кутова. Балкон з кімнати. Висота стелі 2,7 м. Стіни - чистова…