Вхід на сайт

Ел. пошта:
Пароль:

Реєстрація на сайті

Призвіще: Область:
Ім'я: Населений пункт:
    По батькові: Номер телефону:
    Ел. пошта: Компанія:
      Пароль: Посада:
      Повторіть пароль: Рік початку роботи:
      Фото:
      З правилами розміщення об'єктів погоджуюсь

      Забули пароль?

      Вкажіть ел. пошту — ми надішлемо Вам новий пароль для входу
      Ел. пошта:

      Проблема на сайті

      Закрити
      Ваш e-mail:
      (необов'язково)
      Розкажіть нам, що сталось

      без комісії ул. Кадетский Гай, 10 — Продається квартира в новобудові

      (г. Киев, Соломенский район)

      88000 $

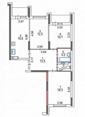
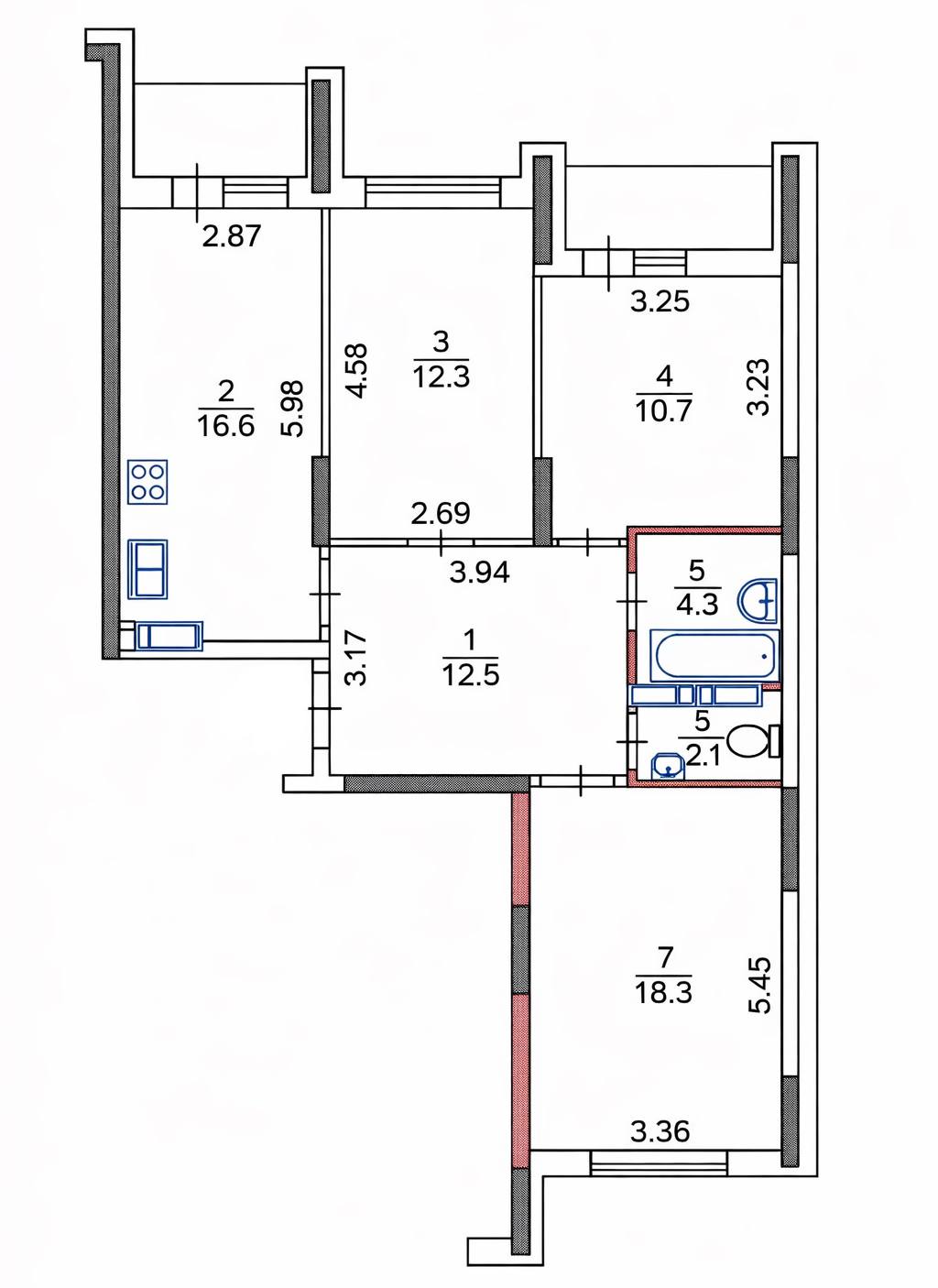
      Загальна площа: 80 кв.м

      Жила площа: 41 кв.м

      Площа кухні: 16 кв.м

      Кімнат: 3

      Поверх: 18

      К-ть поверхів: 26

      Без комісії для покупця. Можливий безготівковий розрахунок (продаж по програмі «Є-відновлення», , "єОселя" Постановам 280, 711, 600 тощо; програмі молодіжного кредитування "Держмолодьжитло").

      Продаж 3-кімнатної квартири в Солом'янському районі, ЖК "Медовий", вул. Кадетський Гай, 10.
      Загальна площа 80, 1 кв.м, житлова 41, 3 кв.м, кухня 16, 6 кв.м, поверх 18/26.

      Простора видова квартира у житловому комплексі комфорт класу без ремонту, після будівельників.
      Три окремі кімнати, простора кухня, великий хол, роздільний санвузол та два балкони.

      Доглянута закрита територія з великим дитячим майданчиком. Гостьовий та підземний паркінги. Гарний підїзд з двостороннім виходом. На теритоії ЖК встановлений генератор, який забезпечує безперебійне опалення, водопостачання та роботу двох пасажирських ліфтів.

      Поряд із будинком магазин та кав'ярня. Поблизу вся необхідна інфраструктура для Вашого комфортного життя, зупинки громадського транспорту, що забезпечує зручні сполучення з різними районами міста. До центру близько 20 хвилин на авто.

      Право власності більше 3-х років.
      Ціна 88000 доларів.

      Надіслати скаргу

      Закрити
      Поскаржитися на об'єкт «ул. Кадетский Гай, 10 (г. Киев, Соломенский район)»
      Ваш коментар:(Необов'язково)
      Ваша скарга буде надіслана ріелтору, що розмістив об'єкт, а також адміністрації сайту АФНУ.
      Ваше ім'я:
      (Обов'язково)
      Ваш e-mail для відповіді:
      (Обов'язково)

      Вам также могут подойти

      ул. Булгакова, 12 (г. Киев, Святошинский район) - Продається квартира, 72000 $ - АФНУ

      Оновлено: 25 березня

      Розміщено: 17 лютого 2023

      Продається квартира

      2 кімн., площа 55/26/8, поверх 3/5

      г. Киев, ул. Булгакова, 12

      72000 $ без комісії

      Яковенко Виктория Владимировна

      руководитель отдела продаж (VALION Київ, Харків, Одеса, Міколаїв, Львів, Івано-Франківськ, Ужгород, Полтава, Бориспіль, Ірпінь, Вишгород)

      Продається 2-кімнатна квартира по вул. Булгакова, 12. На третьому поверсі п’яти поверхового будинку 2015 року забудови. Загальна площа 55 кв.м., житлова 26 кв.м.
      Простора кухня-вітальня, окрема спальня з гардеробною, балкон.…

      Детальніше

      ул. Майкопская, 1а (г. Киев, Голосеевский район) - Продається квартира, 100000 $ - АФНУ

      Оновлено: 25 березня

      Розміщено: 1 листопада 2023

      Продається квартира

      4 кімн., площа 97/83/15, поверх 4/6

      г. Киев, ул. Майкопская, 1а

      100000 $ без комісії

      Яковенко Виктория Владимировна

      руководитель отдела продаж (VALION Київ, Харків, Одеса, Міколаїв, Львів, Івано-Франківськ, Ужгород, Полтава, Бориспіль, Ірпінь, Вишгород)

      Продається видова дворівнева квартира з двома великими видовими терасами (15 та 30 м²) на 4-5 поверхах шестиповерхового будинку. Квартира після будівельників загальною площею 97 м² має вільне планування, що дає…

      Детальніше

      Коментарі